Välkommen till denna trivsamma lägenhet högt upp i huset!
Välkommen att söka denna trevligt planerade tvårumslägenhet. Fräsch och fin bostad i trivsamt område i Lund. Bra planlösning med öppet mellan kök och vardagsrum. Rejält sovrum med garderobsvägg. Lägenheten har genomgående parkettgolv och ljusa väggar. Köksinredning i vitt. Här finns kyl/frys, spis/ugn, spisfläkt samt diskmaskin. Badrum med dusch, wc, handdukstork (el) och tvättställ. Förberett för tvättmaskin. Helkaklade väggar och våtrumsmatta.
Här möts du av en ljus och fräsch interiör med genomgående parkettgolv och vitmålade väggar. Den öppna planlösningen mellan kök och vardagsrum skapar en härlig social yta – perfekt för middagar med vänner eller mysiga hemmakvällar. Köket är inrett i vitt och utrustat med allt du behöver: kyl/frys, spis/ugn, spisfläkt och diskmaskin som underlättar vardagen. Sovrummet är rejält tilltaget och erbjuder en praktisk garderobsvägg med gott om förvaringsmöjligheter. Badrummet är både fräscht och funktionellt – helkaklade väggar, dusch, wc, handdukstork (el) och förberett för tvättmaskin gör att du får det lilla extra.
Allt detta i ett omtyckt och trivsamt område i Lund, där både stadens puls och grönskande omgivningar finns inom räckhåll.
Här får du ett hem att trivas i – länge!
Övrigt
Värme, vatten och kabel-tv (Sappa) ingår i hyran. Internet tecknas separat med ViaEuropa. Parkering finns, i mån av plats, att hyra för 726kr/mån (2025), belägna på taket av garaget som ligger i området.
El och hemförsäkring tecknas av hyresgästen. Lägenheten hyrs ut i befintligt skick.
Gemensam tvättstuga och tillhörande källarförråd finns i källaren i huset. Det finns två soprum utanför trappuppgången.
Alla intresseanmälningar på våra lediga lägenheter görs via hemsidan. Vi reserverar oss för eventuella felskrivningar.
Rubricerad hyra gäller för 2025 .

9 920 kr/mån
Tillgänglig: | 1 januari, 2026 |
---|---|
Antal rum: | 2 rum och kök |
Storlek: | 63m² |
Våning: | 5 |
Hiss: | Ja |
Balkong: | Ja |
Tvättmaskin: | Nej |
---|---|
Förråd: | Ja |
Fastighet: | Solfångaren 6 |
Byggnadsår: | 2005 |
Objektsnummer: | 1243120-1402 |
Vill du veta mer om våra riktlinjer? Läs vår uthyrningspolicy.
Faciliteter
- Hiss i fastigheten
- Bredband tecknas av dig som kund
- Porttelefon
- Fastigheten har postboxar
- Balkong
- Källarförråd
- Säkerhetsdörr
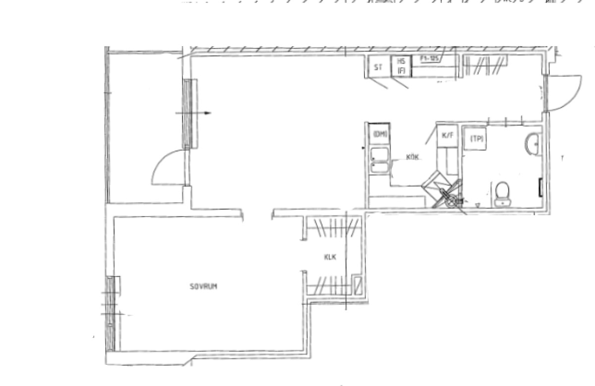
Planlösning
