Trea med härligt ljusinsläpp – högst upp på gaveln i huset!
Beskrivning
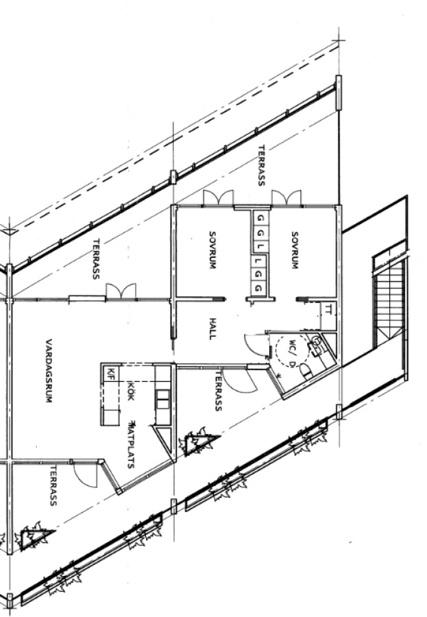
Egen entré från loftgång. Hall med garderob. Genomgående lägenhet, kök med matplats och vardagsrum i anslutning. Från vardagsrummet nås balkongen, modell större i rakt västerläge, samma balkong nås även från sovrummen. Ytterligare uteplats i öster från vardagsrummet. Köket har släta, ljusgrå luckor, här finns spis/varmluftsugn, spisfläkt, kyl/frys och diskmaskin. Parkettgolv i hela lägenheten och ljusa väggar. Badrummet är utrustat med dusch, wc, tvättställ, spegelskåp och handdukstork. Kaklat lokalt i duschutrymmet samt våtrumsmatta på golvet. Tvättpelare finns. Sovrum 1 med plats för dubbelsäng och med garderober, utgång till balkong. Sovrum 2, även här garderober, med utgång till balkong.
Övrigt
Värme, vatten, kabel-tv (Sappa), el och internet (250/250 Mbit, egen router krävs ViaEuropa) ingår i den angivna hyran. Hemförsäkring tecknas av hyresgästen.
El ligger som ett tillägg (inräknad i angiven hyra). Förråd finns i källarplan eller i gårdshus. Parkering finns, i mån av plats, att hyra för 245kr/mån (2025). Lägenheten hyrs ut i befintligt skick. Hiss från markplan.
Alla intresseanmälningar på våra lediga lägenheter görs via hemsidan. Vi reserverar oss för eventuella felskrivningar.
Rubricerad hyra gäller för 2025.

12 250 kr/mån
Tillgänglig: | 1 januari, 2026 |
---|---|
Antal rum: | 3 rum och kök |
Storlek: | 77m² |
Våning: | 5 |
Hiss: | Ja |
Balkong: | Ja |
Tvättmaskin: | TM/TT |
---|---|
Diskmaskin: | Ja |
Förråd: | Ja |
Fastighet: | Ridfogden 1 |
Byggnadsår: | 2006 |
Objektsnummer: | 4501110-1505 |
Vill du veta mer om våra riktlinjer? Läs vår uthyrningspolicy.
Faciliteter
- Hiss i fastigheten
- Kabel-TV 3% avgift justeras med 3% 1/1 varje år
- Handdukstork, kostnad för uppvärmning ingår i hyran
- Lägenheten är utrustad med tvättmaskin och torktumlare
- Kombinerad kyl/frys
- Fastigheten har postboxar
- Balkong
- Gårdsförråd
- Dusch med draperistång
- Diskmaskin finns
Planlösning
