Modern student-2:a om 54 kvm uthyres på Campus, Växjö – nära Linnéuniversitetet
Välkommen hem
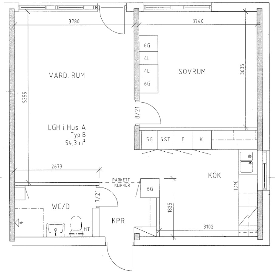
Nu finns möjligheten att hyra en ljus och välplanerad tvårumslägenhet i attraktiva Teleborg – endast för studenter. Med hög standard, smart planlösning och närhet till Linnéuniversitetet får du ett bekvämt boende med både stil och funktion.
Lägenhetens fördelar
- Hall med klinkergolv, säkerhetsdörr och garderob för praktisk förvaring
- Rymligt sovrum med plats för dubbelsäng och fyra garderober
- Ljust vardagsrum med fransk balkong som skapar karaktär
- Genomgående parkettgolv och vitmålade väggar för en modern känsla
- Stilrent kök med stort fönster, stor kyl/frys, gott om förvaring och plats för matbord
- Kaklat badrum med dusch, badrumsskåp och handdukstork
Bekvämligheter som ingår
- Vatten, värme och kabel-TV
- Fiberanslutning med 10 Mbit (möjlighet till uppgradering)
- Förråd för extra förvaring
- Tillgång till tvättstuga i angränsande fastighet, inklusive 8 tvättar/månad med tvätt- och sköljmedel
- Hyresfritt under juni och juli
(Möjlighet att hyra parkeringsplats för 160 kr/månad, i mån av plats.)
Om området – Teleborg, Växjö
Teleborg är ett av Växjös mest populära områden bland studenter tack vare närheten till Linnéuniversitetet. Här finns allt du behöver inom räckhåll: butiker, restauranger, vårdcentral, bibliotek och träningsanläggningar. Området är dessutom omgivet av fina grönområden, sjöar och motionsspår, vilket ger goda möjligheter till en aktiv fritid. Med cykel eller buss tar du dig smidigt till Växjö centrum och resecentrum.
Hyresvillkor
- Endast för studenter
- Hyresperiod: löpande, hyresfritt juni och juli. 3 månaders uppsägningstid
- Parkeringsplats: möjlighet att hyra i mån av plats
- Förbrukningsel och hemförsäkring tillkommer
- Bilder kan vara exempelbilder från identisk lägenhet
- Hyran avser förhandlingar för 2025
Intresserad?
Kontakta oss gärna för mer information eller för att boka en visning. Denna studentanpassade tvåa på Campus är ett perfekt val för dig som vill bo modernt, prisvärt och med gångavstånd till Linnéuniversitetet.
8 362 kr/mån
Tillgänglig: | 1 januari, 2026 |
---|---|
Antal rum: | 2 rum och kök 10 stud JJ |
Storlek: | 54m² |
Våning: | 1 |
Hiss: | Nej |
Balkong: | Nej |
---|---|
Tvättmaskin: | Nej |
Fastighet: | Idet 1 |
Byggnadsår: | 1973 |
Objektsnummer: | 1042190-1007 |
Vill du veta mer om våra riktlinjer? Läs vår uthyrningspolicy.
Faciliteter
- Tvättstuga finns i angränsande fastighet
- Säkerhetsdörr
Planlösning

