Modern lägenhet uthyres i Nyby Gård, Uppsala – med balkong, uteplats och fräscht kök
Välkommen till en ljus och välplanerad lägenhet i populära Nyby Gård. Här bor du med modern standard, smakfulla ytskikt och generösa utrymmen både inne och ute – perfekt för dig som söker ett bekvämt och trivsamt boende i Uppsala.
Lägenhetens fördelar
Renoverade ytskikt från 2021 med stilren finish
Nytt kök utrustat med diskmaskin och moderna vitvaror
Helkaklat dusch- och badrum med klinkers, tvättmaskin, torktumlare och handdukstork
Stort sovrum med klädkammare för gott om förvaring
Balkong på baksidan samt uteplats på framsidan – både morgon- och kvällssol
Eget förråd i fristående förrådshus
Gemensamma faciliteter
I området finns både tvättstuga, grovtvättstuga och bastu som ger extra bekvämlighet i vardagen.
Området – Nyby Gård, Uppsala
Nyby Gård är ett attraktivt och familjevänligt område i norra Uppsala. Här bor du nära grönområden, lekplatser och motionsspår, samtidigt som du snabbt tar dig till stadskärnan med buss eller cykel. I närområdet finns skolor, förskolor, mataffärer och service som gör vardagen smidig. Läget passar både barnfamiljer, studenter och yrkesverksamma som vill ha lugn och natur nära men ändå goda kommunikationer in till centrum.
11 816 kr/mån
Tillgänglig: | 1 januari, 2026 |
---|---|
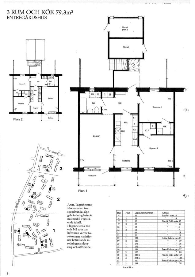
Antal rum: | 3 rum och kök |
Storlek: | 79m² |
Våning: | 1 |
Hiss: | Nej |
Balkong: | Ja |
Tvättmaskin: | Nej |
---|---|
Förråd: | Ja |
Fastighet: | Gamla Uppsala 109:1 |
Byggnadsår: | 1988 |
Objektsnummer: | 062-4610037 |
Vill du veta mer om våra riktlinjer? Läs vår uthyrningspolicy.
Faciliteter
- Tele 2 grundutbud ingår i hyran
- Bredband tecknas av dig som kund
- Hushållsel ingår inte i hyran
- Tvättstuga finns i angränsande fastighet
- Fastigheten har postboxar
- Balkong
- Förråd i anslutning till lägenheten
- Säkerhetsdörr
- Samlingslokal i gemensamhetsutrymme
- Bastu i gemensamhetsutrymme
Planlösning
