Modern trerumslägenhet med västerbalkong på Carlshem
Välkommen till ett trivsamt boende i populära Carlshem! Här erbjuds en modern och välplanerad trerumslägenhet på bottenplan med genomgående ljusa ytskikt, hög standard och bekvämligheter som gör vardagen enkel.
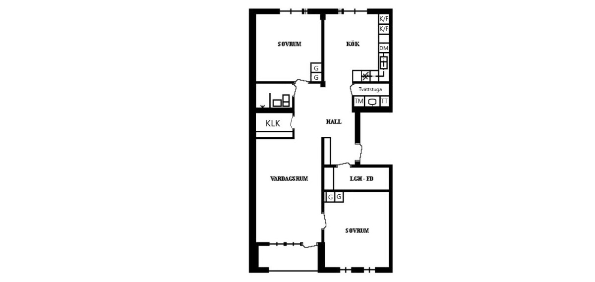
Lägenheten
Du möts av en inbjudande hall med klinkergolv i ljusgrå ton som övergår i ett stilrent ekgolv som löper genom hela lägenheten. Väggarna är vitmålade och bidrar till en ljus och luftig känsla.
Det helkaklade badrummet har grått klinkergolv, vitt kakel på väggarna samt möjlighet till golvvärme för extra komfort. Här finns infällda spotlights, duschväggar i glas och gott om plats för dina badrumsartiklar.
Köket är modernt utrustat med vita skåpsluckor, rostfria vitvaror, varmluftsugn med induktionshäll, diskmaskin och mikro. Från köket når du den soliga balkongen i västerläge – perfekt för avkoppling under eftermiddags- och kvällssolen.
Lägenheten har dessutom tvättmaskin och torktumlare. Ett förråd finns bekvämt inne i bostaden.
OBS: Bilderna är från en annan lägenhet som har renoverats med samma standard, det är alltså inte från denna lägenheten.
Fakta & Bekvämligheter
- Värme, vatten och el ingår i hyran
- Fiber via öppet nät (abonnemang tecknas separat)
- Egen tvättmaskin
- Balkong i västerläge
- Förråd i lägenheten
Området – Carlshem
Carlshem är ett lugnt och grönt bostadsområde i Umeå med nära till både natur, service och goda kommunikationer. I närområdet finns matbutiker, skolor, förskolor och restauranger. Umeå universitet och Norrlands universitetssjukhus ligger på bekvämt cykelavstånd. Bussförbindelserna till centrum är täta, och området bjuder på fina gång- och cykelvägar samt närhet till skog och motionsspår.
Parkering
Parkeringsplats kan hyras inom området. Ansökan sker enkelt via hyresvärdens hemsida.
Intresserad?
Välkommen att skicka in din intresseanmälan redan idag! Ladda upp ditt arbetsgivarintyg eller annan inkomstkälla samt 3 senaste utbetalningsbesked på Mina sidor. Varmt välkommen med din ansökan som sker via hemsidan.
11 222 kr/mån
Tillgänglig: | 1 februari, 2026 |
---|---|
Antal rum: | 3 rum och kök |
Storlek: | 83m² |
Våning: | 0 |
Hiss: | Nej |
Balkong: | Ja |
---|---|
Tvättmaskin: | TM/TT |
Förråd: | Ja |
Fastighet: | Gnejsen 98 |
Objektsnummer: | 1196101-1002 |
Vill du veta mer om våra riktlinjer? Läs vår uthyrningspolicy.
Faciliteter
- Hushållsel ingår i hyran
- Lägenheten är utrustad med tvättmaskin och torktumlare
- Balkong
- Förråd i lägenheten
Planlösning
