Ljus och fin etta med kokvrå. Värme och vatten ingår i den ingivna hyran.
Den här lägenheten ligger på tredje våningen, hiss finns.
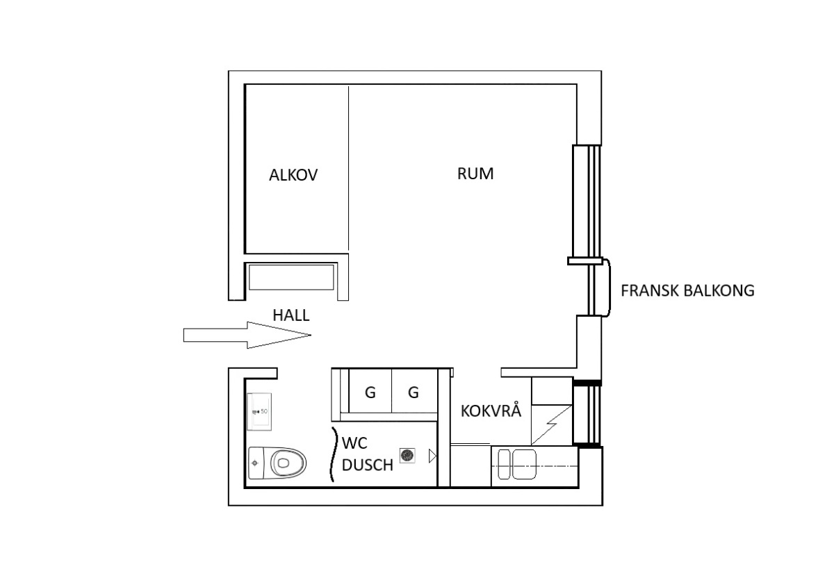
Rummet är ljust målat på väggarna och har en sovalkov med draperi, parkettgolv samt en fransk balkong mot gården.
Kokvrån har kyl/frys och spis med ugn och ett litet fönster.
Här trivs du som vill bo i ett trevligt bostadsområde med närhet till såväl grönytor och trevliga promenadstråk, matbutik som finns i samma byggnad och restaurang. Centralstationen ligger några hundra meter från bostaden. Den trevliga innergården erbjuder plats för umgänge med vänner och familj!
Hyran avser 2025 års förhandlade nivå.
I hyran ingår grundutbud av tv-kanaler, värme, kall- och varmvatten.
Bredband via fiber tecknas hos Telenor
Separat intresseanmälan till parkeringsplats och garage.
Låter detta som något för dig? Registrera dig här på hemsidan och lägg en intresseanmälan!

3 469 kr/mån
Tillgänglig: | 1 januari, 2026 |
---|---|
Antal rum: | 1 rum och kokvrå |
Storlek: | 26m² |
Våning: | 3 |
Hiss: | Ja |
Balkong: | Nej |
Tvättmaskin: | Nej |
---|---|
Förråd: | Ja |
Fastighet: | Ormbunken 28 |
Byggnadsår: | 1962 |
Objektsnummer: | 1400100-1304 |
Vill du veta mer om våra riktlinjer? Läs vår uthyrningspolicy.
Faciliteter
- Hiss i fastigheten
- Bredband tecknas av dig som kund
- Hushållsel ingår inte i hyran
- Tvättstuga finns i angränsande fastighet
- Källarförråd
Planlösning
