Trevlig trea med fiskbensparkett och citynära läge vid Folkets Park!
Välkommen hem till denna rymliga trea, belägen på ett attraktivt läge bara ett stenkast från Folkets Park och Möllevångens sprudlande utbud av torghandel, restauranger och caféer. Här får du en bostad med gott om yta, klassiska detaljer och fina möjligheter att forma efter egen smak.
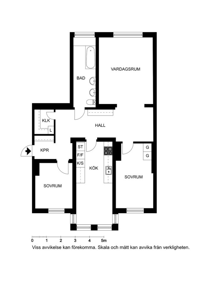
Köket är stort och inbjudande med plats för många runt matbordet. Här finns vita köksluckor, gott om förvaringsutrymme och arbetsytor samt en äldre spismodell tillsammans med hel kyl och frys. Golvet är belagt med praktisk plastmatta.
Båda sovrummen vetter mot den lugna gården och är utrustade med plastmatta. För förvaring finns klädkammare.
Badrummet är rymligt och funktionellt med blå våtrumsmatta, kaklade väggar och badkar – perfekt för både vardag och avkoppling.
Vardagsrummet bjuder på vacker fiskbensparkett och gott om plats för både soffgrupp och matsalsdel. Stora fönster skapar ett härligt ljusinsläpp och en trivsam atmosfär.
Här bor du med ett av Malmös mest levande områden runt hörnet, samtidigt som du når stadens centrum på bara några minuter.
Varmt välkommen till ett hem som kombinerar charm, funktion och ett fantastiskt citynära läge!
Övrigt
Värme, vatten, och kabel-tv grundutbud ingår i den angivna hyran. Bredband och hushållsel ingår ej. Alla intresseanmälningar på våra lediga lägenheter görs via hemsidan. För mer info om vår uthyrningspolicy hittar ni på: https://heimstaden.com/blogg/praktisk-information/uthyrningspolicy/. Vi reserverar oss för eventuella felskrivningar.
Observera att interiörbilderna skiljer sig från verkligheten.
10 074 kr/mån
Tillgänglig: | 1 januari, 2026 |
---|---|
Antal rum: | 3 rum och kök |
Storlek: | 94m² |
Våning: | 0 |
Hiss: | Nej |
Balkong: | Nej |
Tvättmaskin: | Nej |
---|---|
Förråd: | Ja |
Fastighet: | Ekot 10 |
Byggnadsår: | 1938 |
Objektsnummer: | 4110102-1003 |
Vill du veta mer om våra riktlinjer? Läs vår uthyrningspolicy.
Faciliteter
- Tvättstuga finns i fastigheten
- Källarförråd
Planlösning
