Trevlig tvårumslägenhet på Pilgatan 6, Värnhem
Välkommen till Värnhem i östra Malmö – ett område med ett naturligt centrum kring Värnhemstorget. Här möts Föreningsgatan, Nobelvägen och Sallerupsvägen, vilket gör det enkelt att ta sig både in och ut ur staden. Området har mycket goda bussförbindelser inom Malmö och vidare ut i regionen, och med bil når du snabbt motorvägen. Runt torget finns ett brett utbud av butiker, restauranger och kontor, samt köpcentret Entré med biograf och shopping. Malmö centralstation ligger dessutom på bekvämt promenadavstånd.
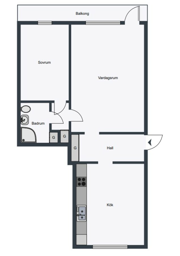
Lägenheten är belägen på andra våningen och erbjuder en trivsam planlösning med fönster i två väderstreck. Balkongen och sovrummet vetter mot Pilgatan, vilket ger ett fint ljusinsläpp och utsikt mot gatan. Köket vetter mot den lugna innergården, med loftgång utanför. Köket är praktiskt och utrustat med kyl/frys, spishäll och diskmaskin – allt för en smidig vardag. Vardagsrummet är rymligt och passar utmärkt för både avkoppling och socialt umgänge. Sovrummet har gott om plats för både säng och förvaring. Badrummet är helkaklat och utrustat med dusch.
I källaren finns en gemensam tvättstuga som enkelt bokas via ett modernt taggsystem.
Övrigt
- Hyran avser 2025 års hyresnivå.
- Värme, vatten och grundutbud för kabel-tv ingår i hyran.
- Hushållsel och bredband tillkommer.
- Garageplatser i fastigheten hyrs ut av Apcoa.
- Alla intresseanmälningar sker via vår hemsida. Vår uthyrningspolicy hittar du här: Uthyrningspolicy.
- Vi reserverar oss för eventuella felskrivningar. Exempelbilder kan förekomma.
Välkommen hem!
9 131 kr/mån
Tillgänglig: | 1 januari, 2026 |
---|---|
Antal rum: | 2 rum och kök |
Storlek: | 56m² |
Våning: | 2 |
Hiss: | Ja |
Balkong: | Ja |
Tvättmaskin: | Nej |
---|---|
Diskmaskin: | Ja |
Förråd: | Ja |
Fastighet: | Quiding 19 |
Byggnadsår: | 1965 |
Objektsnummer: | 6863140-1205 |
Vill du veta mer om våra riktlinjer? Läs vår uthyrningspolicy.
Faciliteter
- Hiss i fastigheten
- Kabel-TV Ingår i hyran
- Bredband tecknas av dig som kund
- Hushållsel ingår inte i hyran
- Tvättstuga finns i fastigheten
- Handdukstork, kostnad för uppvärmning ingår inte
- Porttelefon
- Kombinerad kyl/frys
- Fastigheten har postboxar
- Spisfläkt
- Balkong
- Entréförråd
- Glaskeramikhäll
- Säkerhetsdörr
- Duschvägg/ar
- Diskmaskin finns
Planlösning
