Lund - Norra Fäladen

Kulgränden 7 A

Tillbaka till sök

Välkommen till en mysig och ljus etta med egen uteplats i grönt och lugnt område.


Beskrivining


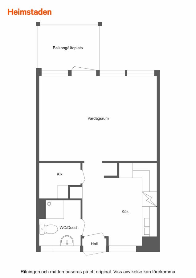
Här bor du med en egen ingång. Golvet är i parkett genomgående i lägenheten och med vita väggar. Köksinredning i vitt, här finns kyl, frys, spis/ugn och spisfläkt. Helkaklat badrum med dusch. Klädkammare finns i lägenheten. Egen uteplats med utgång från vardagsrummet där stor fin allmän gräsmatta finns framför fastigheten. Förråd och tvättstuga finns i källare på Kulgränden 3 C.


Övrig information


Värme, vatten, kabel-TV och el ingår i hyran. Hemförsäkring och bredband (via Telia) tecknas av hyresgästen. Lägenheten hyrs ut i befintligt skick. Alla intresseanmälningar på våra lediga lägenheter görs via hemsidan. Vi reserverar oss för eventuella felskrivningar. Underhåll/skötsel av trädgårdstäppa ombesörjs av hyresgästen. Planlösning kan skilja sig från verkligheten något.


Vill du bo i en välplanerad etta med egen uteplats i naturnära miljö, skicka in din intresseanmälan redan idag!

Uthyrare

Fanny Wegard

E-mail: fanny.wegard@heimstaden.com

6 874 kr/mån

Tillgänglig: 1 februari, 2026
Antal rum: 1 rum och kök
Storlek: 35m²
Våning: 1
Hiss: Nej
Balkong: Nej
Tvättmaskin: Nej
Förråd: Ja
Fastighet: Skyttegillet 3
Byggnadsår: 1968
Objektsnummer: 1222121-1003

Vill du veta mer om våra riktlinjer? Läs vår uthyrningspolicy.

Faciliteter

  • Kabel-TV Ingår i hyran
  • Bredband tecknas av dig som kund
  • Bottenvåning/markplan
  • Hushållsel ingår i hyran
  • Tvättstuga finns i angränsande fastighet
  • Fastigheten har postboxar
  • Uteplats
  • Källarförråd

Planlösning

För att se kartan måste du acceptera cookies för Google Maps.
Vänligen ladda om sidan efter att du har ändrat dina cookie-inställningar.


I närheten

Visas nu
Visas nu
Visas nu