Linköping - Vasastan

Erdtmans Gata 2

Tillbaka till sök

Modern och Rymlig 3:a tillgänglig för uthyrning!


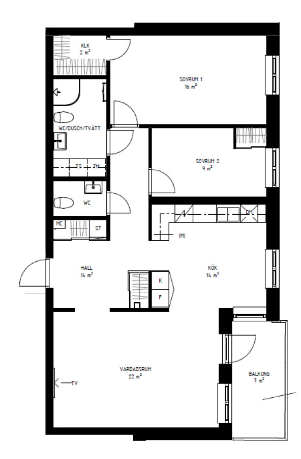
Köket är utrustat med diskmaskin, hel kyl och frys samt generösa arbetsytor som gör matlagningen enkel och effektiv. Badrummet är helkaklat och erbjuder både tvättmaskin och torktumlare, en kommod med spegel samt en stilren dusch med glasväggar. Dessutom finns en separat gästtoalett som ger extra bekvämlighet för både dig och dina gäster. Det rymliga vardagsrummet blir hemmets hjärta, med direkt utgång till balkongen. Lägenheten har två sovrum där det större rummet är utrustat med en rymlig klädkammare, medan det mindre sovrummet har en praktisk skjutdörrsgarderob. Förvaringsmöjligheterna kompletteras av ytterligare utrymmen i hallen, vilket bidrar till en välorganiserad vardag.


 


I hyran ingår det värme och vatten.
Hyran avser 2025 års hyresnivå.
Se planritning.
Observera att avvikelse kan förekomma.
Garageplats finns att hyra i anslutning till fastigheten.
Intresseanmälningar via mejl besvaras ej.


 


Nordengatan ligger i hjärtat av Övre Vasastan, ett område som kombinerar stadens bekvämligheter med en känsla av lugn. Du har nära till mysiga kvarterskrogar och matbutik samtidigt som grönområden och promenadstråk finns runt hörnet. För dig som pendlar är kommunikationerna utmärkta och du har Linköpings resecentrum en kort promenad bort.et mer.


Att bo hos Heimstaden innebär en trygg och bekväm vardag. Vår kundservice är tillgänglig dygnet runt för att hjälpa dig med akuta ärenden.


Som en extra välkomnande gest bjuder vi på två månaders hemförsäkring som inflyttningspresent. Vi strävar alltid efter att ge dig det lilla extra, rabatter och kundaktiviteter som gör ditt boende ännu mer uppskattat.


Välkommen med din ansökan! Vi ser fram emot att få ge dig nycklarna till ditt nya hem!

Lindita Baruti

Uthyrare

Lindita Baruti

E-mail: lindita.baruti@heimstaden.com

13 874 kr/mån

Tillgänglig: 1 januari, 2026
Antal rum: 3 rum och kök
Storlek: 89m²
Våning: 4
Hiss: Ja
Balkong: Ja
Tvättmaskin: TM/TT
Diskmaskin: Ja
Förråd: Ja
Fastighet: Alnen 16
Byggnadsår: 2017
Objektsnummer: 1394110-1302

Vill du veta mer om våra riktlinjer? Läs vår uthyrningspolicy.

Faciliteter

  • Hiss i fastigheten
  • Tele 2 grundutbud ingår i hyran
  • Bredband tecknas av dig som kund
  • Hushållsel ingår inte i hyran
  • Lägenheten är utrustad med tvättmaskin och torktumlare
  • Dubbel kyl/frys
  • Balkong
  • Varmluftsugn finns
  • Källarförråd
  • Spis med häll
  • Säkerhetsdörr
  • Duschvägg/ar
  • Diskmaskin finns

Planlösning

För att se kartan måste du acceptera cookies för Google Maps.
Vänligen ladda om sidan efter att du har ändrat dina cookie-inställningar.


I närheten

Visas nu
Visas nu
Visas nu