Nu finns en charmig 3 RoK ledig på Stormvägen!
Välkommen till denna trivsamma och ljusa lägenhet med äldre charm och praktisk planlösning.
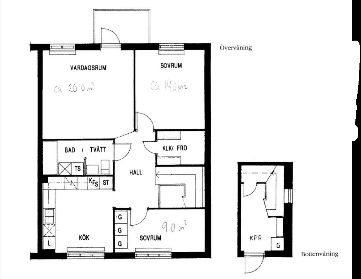
När du kliver in möts du av en rymlig hall med gott om plats för hallmöbler samt en praktisk liten kammare under trappan, perfekt för extra förvaring. En trappa upp finner du resten av bostaden med kök, vardagsrum, sovrum och badrum. Golven i lägenheten är klädda med plastmatta och väggarna i ljusa färger. Vardagsrummet är ljust och luftigt, och härifrån når du en härlig balkong för morgonkaffet eller sommarkvällar. Köket med sina vita köksluckor är stort och rymmer enkelt ett större matbord. Här finns även en diskmaskin som underlättar vardagen. Badrummet är utrustat med både tvättmaskin, torktumlare och badkar, samt har ljusa väggar och plastmatta.
I hyran ingår det värme och vatten.
Hyran avser 2025 års hyresnivå.
Se planritning.
Observera att avvikelse kan förekomma.
Garage/parkeringsplats finns att hyra i anslutning till fastigheten.
Intresseanmälningar via mejl besvaras ej
Välkommen till ett omtyckt område med närhet till naturen och bekvämligheter för hela familjen. Beläget endast cirka 4 kilometer från Linköpings centrum, Tallboda erbjuder en harmonisk livsstil med bekvämlighet och naturskön omgivning. Här finns skolor från förskoleklass till år 6. I Tallboda centrum finns matbutik, pizzeria och postservice. Området är familjevänligt med närhet till naturen, lekplatser och motionsspår. Bra bussförbindelser och fina cykelvägar till city.
Att bo hos Heimstaden innebär en trygg och bekväm vardag. Vår kundservice är tillgänglig dygnet runt för att hjälpa dig med akuta ärenden.
Som en extra välkomnande gest bjuder vi på två månaders hemförsäkring som inflyttningspresent. Vi strävar alltid efter att ge dig det lilla extra, rabatter och kundaktiviteter som gör ditt boende ännu mer uppskattat.
Välkommen med din ansökan! Vi ser fram emot att få ge dig nycklarna till ditt nya hem!

9 173 kr/mån
Tillgänglig: | 1 januari, 2026 |
---|---|
Antal rum: | 3 rum och kök |
Storlek: | 85m² |
Våning: | 0 |
Hiss: | Nej |
Balkong: | Nej |
---|---|
Tvättmaskin: | Nej |
Fastighet: | Malmskogen 10:99 |
Objektsnummer: | 1338580-1001 |
Vill du veta mer om våra riktlinjer? Läs vår uthyrningspolicy.
Planlösning
