Linköping - Tallboda

Stormvägen 74

Tillbaka till sök

Nu finns möjlighet att flytta in i en helrenoverad lägenhet i populära Tallboda!


Du välkomnas av en öppen och inbjudande entré på markplan där du även har en klädkammare. På övervåningen är det vackert parkettgolv i sovrummen, vardagsrum och kök. Väggarna är vitmålande. Från vardagsrummet finns utgång till balkongen. Köket är modernt med vita köksluckor, diskmaskin, mikrovågsugn och glaskeramikhäll med varmluftsugn. Det helkaklade badrummet utrustas med tvättmaskin och torktumlare, välvda duschväggar i glas, golvvärme och handukstork. Vid entrén till bostaden finns en altan i trä. På innergården finns en lekplats och gemenskapsytor.


 


I hyran ingår det värme och vatten.
Hyran avser 2025 års hyresnivå.
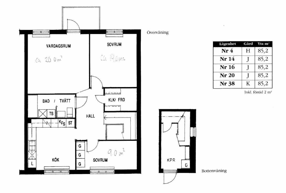
Se planritning.
Observera att avvikelse kan förekomma.
Garageplats finns att hyra i anslutning till fastigheten.
Intresseanmälningar via mejl besvaras ej.


 


Välkommen till ett omtyckt område med närhet till naturen och bekvämligheter för hela familjen. Beläget endast cirka 4 kilometer från Linköpings centrum, Tallboda erbjuder en harmonisk livsstil med bekvämlighet och naturskön omgivning. Här finns skolor från förskoleklass till år 6. I Tallboda centrum finns matbutik, pizzeria och postservice. Området är familjevänligt med närhet till naturen, lekplatser och motionsspår. Bra bussförbindelser och fina cykelvägar till city.


Att bo hos Heimstaden innebär en trygg och bekväm vardag. Vår kundservice är tillgänglig dygnet runt för att hjälpa dig med akuta ärenden.


Som en extra välkomnande gest bjuder vi på två månaders hemförsäkring som inflyttningspresent. Vi strävar alltid efter att ge dig det lilla extra, rabatter och kundaktiviteter som gör ditt boende ännu mer uppskattat.


Välkommen med din ansökan! Vi ser fram emot att få ge dig nycklarna till ditt nya hem!

Lindita Baruti

Uthyrare

Lindita Baruti

E-mail: lindita.baruti@heimstaden.com

12 225 kr/mån

Tillgänglig: 1 januari, 2026
Antal rum: 3 rum och kök
Storlek: 85m²
Våning: 0
Hiss: Nej
Balkong: Ja
Tvättmaskin: TM/TT
Diskmaskin: Ja
Förråd: Ja
Fastighet: Malmskogen 10:99
Objektsnummer: 1338460-1001

Vill du veta mer om våra riktlinjer? Läs vår uthyrningspolicy.

Faciliteter

  • Tele 2 grundutbud ingår i hyran
  • Bredband tecknas av dig som kund
  • Hushållsel ingår inte i hyran
  • Handdukstork, kostnad för uppvärmning ingår inte
  • Lägenheten är utrustad med tvättmaskin och torktumlare
  • Kombinerad kyl/frys
  • Spisfläkt
  • Balkong
  • Varmluftsugn finns
  • Entréförråd
  • Glaskeramikhäll
  • Säkerhetsdörr
  • Mikrovågsugn
  • Duschvägg/ar
  • Diskmaskin finns

Planlösning

För att se kartan måste du acceptera cookies för Google Maps.
Vänligen ladda om sidan efter att du har ändrat dina cookie-inställningar.


I närheten

Visas nu
Visas nu
Visas nu