Välkommen till Mårdtorpsgatan 21!
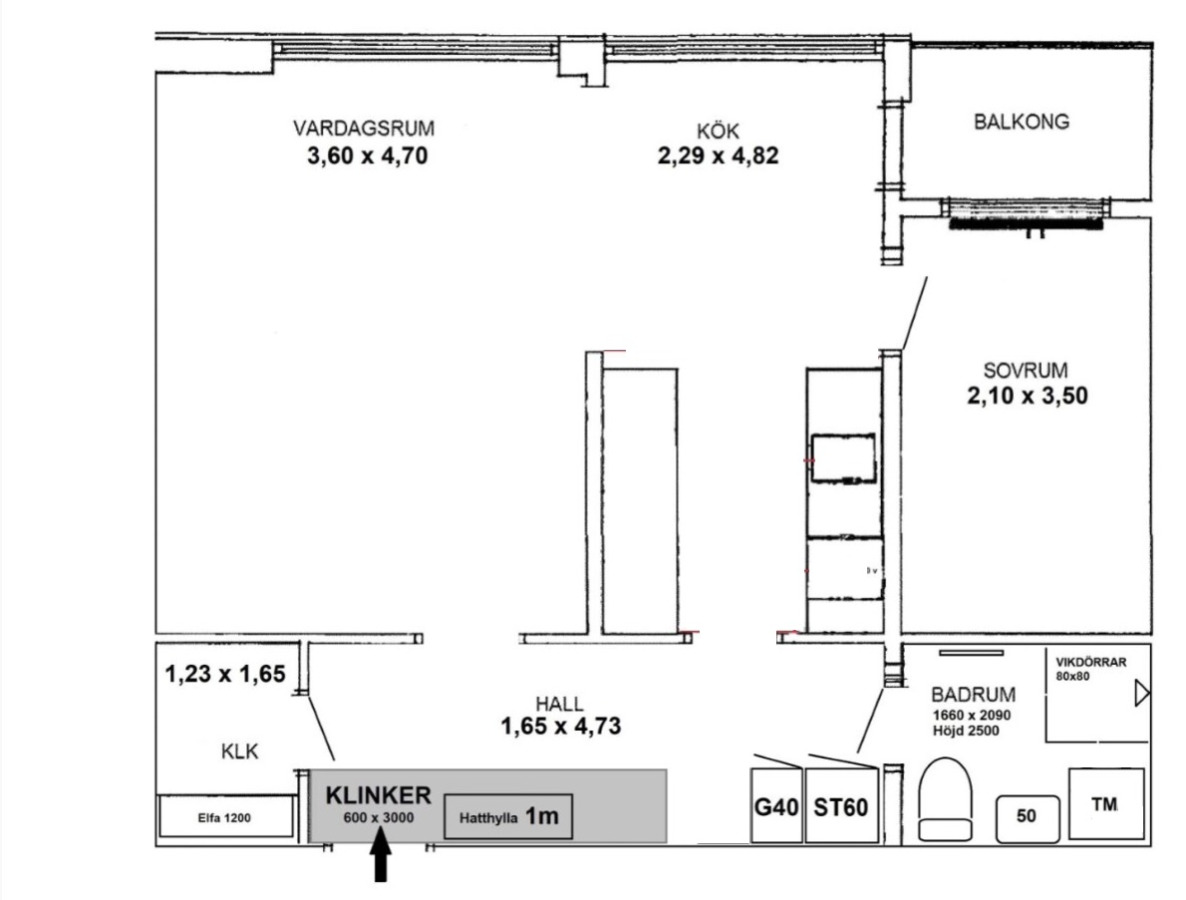
Här erbjuds en renoverad och fin tvåa med balkong. Lägenheten är genomgående målad i en vit kulör som harmoniserar väl med den fina ekparketten.
Hallen är försedd med säkerhetsdörr, hatthylla, städskåp, linneskåp och intill hallen finns det en klädkammare. I anslutning till dörren ligger klinkergolv som sedan övergår till ekparkett.
Köket har beige och släta köksluckor som är försedda med dörrdämpare. Bänkskivan i laminat är både tålig och vacker. Tillsammans med de matchande stänkskydden ger det ett stilrent uttryck. Köket är utrustat med induktionshäll, inbyggd ugn, mikrovågsugn och diskmaskin.
Det helkaklade badrummet renoverades 2024 och har specialdesignade kakelplattor i beige från Marazzi, duschhörna med glasväggar, vattenbesparande blandare och en rymlig kommod. Badrummet är även utrustat med en tvättmaskin.
En kort promenad från bostaden ligger Ryd Centrum, med välsorterad mataffär, apotek och restauranger. Området har utmärkta cykelvägar och bussförbindelser som tar dig snabbt in till stan. Linköpings Universitet nås med en kort cykeltur vilket gör det till en idealisk plats för studenter och Rydskogen erbjuder bland annat fina motionsspår, utegym och frisbeegolf
Att bo hos Heimstaden innebär en trygg och bekväm vardag. Vår kundservice är tillgänglig dygnet runt för att hjälpa dig med akuta ärenden.
Som en extra välkomnande gest bjuder vi på två månaders hemförsäkring som inflyttningspresent. Vi strävar alltid efter att ge dig det lilla extra, rabatter och kundaktiviteter som gör ditt boende ännu mer uppskattat.
På grund av renovering kommer ingen visning att hållas i lägenheten. Vi hyr ut bostaden baserat på annonstexten och exempelbilder som visar materialvalen.
Avvikelser kan förekomma.
Hyran avser 2025 års hyresnivå.
Tillträde efter överenskommelse, snabbt tillträde kommer att prioriteras.
Välkommen med din intresseanmälan!
9 076 kr/mån
Tillgänglig: | 16 oktober, 2025 |
---|---|
Antal rum: | 2 rum och kök |
Storlek: | 50m² |
Våning: | 1 |
Hiss: | Nej |
Balkong: | Ja |
Tvättmaskin: | Ja |
---|---|
Diskmaskin: | Ja |
Förråd: | Ja |
Fastighet: | Ostformen 6 |
Byggnadsår: | 1969 |
Objektsnummer: | 1178120-1004 |
Vill du veta mer om våra riktlinjer? Läs vår uthyrningspolicy.
Faciliteter
- Tele 2 grundutbud ingår i hyran
- Bredband tecknas av dig som kund
- Hushållsel ingår inte i hyran
- Tvättstuga finns i angränsande fastighet
- Tvättmaskin
- Kombinerad kyl/frys
- Balkong
- Varmluftsugn finns
- Förråd i anslutning till lägenheten
- Säkerhetsdörr
- Mikrovågsugn
- Duschvägg/ar
- Diskmaskin finns
- Cykelställ på gården
Planlösning

