Luftig och rymlig 2:a på femte våningen med hiss från markplan!
En hörnlägenhet med hög standard och förträfflig planlösning.
Rymlig taklagd balkong med utsikt delvis över stadshuset, stadsparken samt blick över kvarteret.
Morgon och middagssol.
*En välutrustad bostad med parkettgolv, skjutdörrsgarderober och stilren nordisk design.
*Stenklinker i hall och badrum
*Väggar målade i ljus kulör.
*Vitvaror i rostfritt utförande.
*Hiss från markplan.
*Vindsförråd.
Lägenheten helrenoverades 2020. Diskmaskin, tvättmaskin och torktumlare ingår i hyran.
Som i en liten oas mitt i centrum finner du vårt populära kvarter Kamelen. Runt knuten når du vår vackra stadspark med fina omgivningar. Där kan du njuta av god mat och underhållning. Senior- och handikappvänlig fastighet som ligger granne med servicehuset igelkotten och dess faciliteter. På gångavstånd når du också butiker, restauranger och livsmedelsaffärer. 10 minuter promenad till resecentrum!
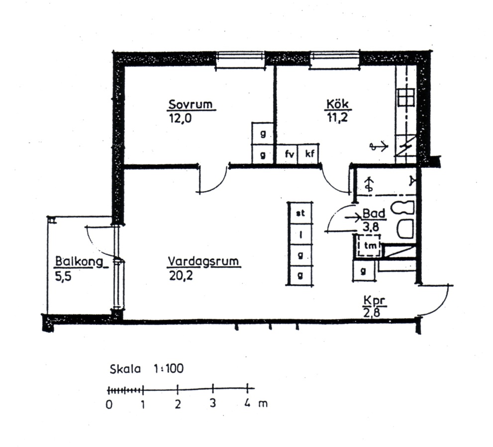
OBS planlösning avser utförande innan renoveringen så viss avvikelser förekommer.
Hyran avser 2025 års förhandlade nivå.
I hyran ingår grundutbud av Tele2's tv-kanaler, värme, kall- och varmvatten.
Bredband tecknas hos Telenor eller Tele2. Fastigheten är ansluten till fiber. Nätverksuttag finns i lägenheten.
Separat intresseanmälan till parkeringsplats och garage.
Låter detta som något för dig? Registrera dig här på hemsidan och lägg en intresseanmälan!

8 521 kr/mån
Tillgänglig: | 1 januari, 2026 |
---|---|
Antal rum: | 2 rum och kök |
Storlek: | 60m² |
Våning: | 5 |
Hiss: | Ja |
Balkong: | Nej |
Tvättmaskin: | Nej |
---|---|
Förråd: | Ja |
Fastighet: | Kamelen 8 |
Byggnadsår: | 1983 |
Objektsnummer: | 0212120-1403 |
Vill du veta mer om våra riktlinjer? Läs vår uthyrningspolicy.
Faciliteter
- Hiss i fastigheten
- Bredband tecknas av dig som kund
- Hushållsel ingår inte i hyran
- Tvättstuga finns i fastigheten
- Vindsförråd
- Källarförråd
Planlösning
