Varmgarage nr 723. Värme och el ingår i hyran.
Moms tillkommer med 25% på hyran om man inte har boendekontrakt hos Heimstaden.
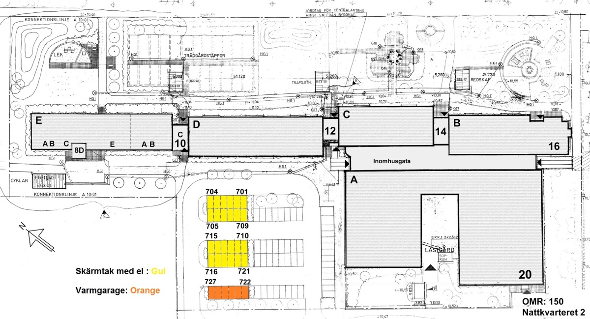
3 månaders uppsägningstid. Se kartbild för att lokalisera platsen.
765 kr/mån
Adress: | Anderstorg |
---|---|
Type: | Garage |
Objektsnummer: | 2840160-3723 |
---|
Planlösning
