Charmig 2:a med uteplatser i Ystad – nära shopping och stadsliv, uthyres
Välkommen till en trivsam och välplanerad lägenhet i ett mindre flerfamiljshus på attraktiva Sommargatan 7 i Ystad. Här bor du bekvämt på första plan med två separata ingångar och tillgång till egna uteplatser – perfekt för dig som söker både funktion och charm.
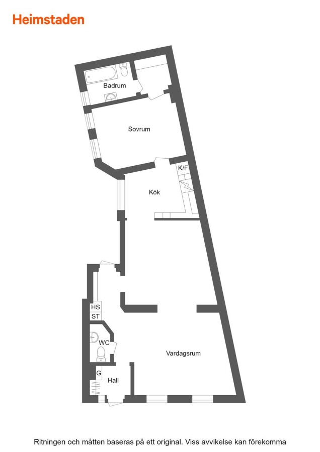
Om lägenheten
Lägenheten erbjuder en genomtänkt planlösning med fina sociala ytor och praktiska lösningar. Du möts av en rymlig hall med goda förvaringsmöjligheter, gästtoalett samt en klädkammare. Vidare in i bostaden finns ett ljust vardagsrum med ett generöst valv som leder till matrummet, vilket skapar en öppen och inbjudande känsla.
Från matrummet nås både hallen och det mindre, funktionella köket med plats för matbord. Köket kommer att uppdateras med ny diskmaskin. Från köket tar du ett trappsteg ner till sovrummet, som får nytt parkettgolv, samt ett angränsande badrum utrustat med dusch och en ny tvättpelare.
Funktioner & bekvämligheter
- Två separata ingångar till lägenheten
- Två mindre uteplatser
- Ny diskmaskin installeras
- Sovrum med nytt parkettgolv
- Badrum med dusch och ny tvättpelare
- Värme, vatten och kabel-tv ingår i hyran
- Den nya hyran hamnar på 10 730kr/må
Om området – Ystad
På Sommargatan bor du med ett bekvämt läge nära Ystads charmiga stadskärna. Här har du shopping, caféer och restauranger runt hörnet, samtidigt som du har nära till grönområden och havet. Ystad erbjuder goda kommunikationer med tåg- och bussförbindelser, vilket gör det enkelt att pendla. Området passar både dig som arbetar i stan och dig som vill ha ett lugnt boende med närhet till allt.
- Alla intresseanmälningar på våra lediga lägenheter görs via hemsidan.
- För mer info om vår uthyrningspolicy hittar ni på: Uthyrningspolicy | Hyra lägenhet Heimstaden
- Bilderna i annonsen är redigerade med AI och kan avvika något från verkligheten, vi reserverar oss för eventuella avvikelser som kan förekomma. Planritningen kan skilja sig från verkligheten.
- Man hyr bostaden i befintligt skick.
10 103 kr/mån
| Tillgänglig: | 15 juli, 2026 |
|---|---|
| Antal rum: | 3 rum och kök |
| Storlek: | 81m² |
| Våning: | 1 |
| Hiss: | Nej |
| Balkong: | Nej |
| Tvättmaskin: | Tvättpelare |
|---|---|
| Diskmaskin: | Ja |
| Förråd: | Ja |
| Fastighet: | Håkan Mellersta 22 |
| Byggnadsår: | 1995 |
| Objektsnummer: | 1045110-1001 |
Vill du veta mer om våra riktlinjer? Läs vår uthyrningspolicy.
Faciliteter
- Kabel-TV Ingår i hyran
- Bredband tecknas av dig som kund
- Bottenvåning/markplan
- Tvättstuga finns i fastigheten
- Tvättpelare
- Kombinerad kyl/frys
- Uteplats
- Förråd entréplan
- Spis med häll
- Dusch med draperistång
- Diskmaskin finns
- Cykelställ på gården
Planlösning