Vetlanda - Stensåkra

Lasarettsgatan 27 D

Tillbaka till sök








Ljus 3:a på Lasarettsgatan med balkong 


Välkommen till denna ljusa och välplanerade trea på 73 kvm på Lasarettsgatan i Vetlanda. Här erbjuds ett bekvämt boende med härligt ljusinsläpp, balkong och ett lugnt läge – perfekt för dig som söker ett trivsamt hem i en familjevänlig miljö.


Om bostaden
Lägenheten är belägen på tredje våningen och har ett fint ljusflöde som skapar en luftig och inbjudande känsla. Planlösningen är genomtänkt med gott om utrymme för både vardagsliv och umgänge. Från vardagsrummet nås balkongen som ger en trevlig plats för avkoppling med utsikt över omgivningen. Badrummet är utrustat med badkar, vilket bidrar till extra komfort i vardagen.


Funktioner & bekvämligheter



  • Välplanerad trea med generösa ytor

  • Balkong med utgång från vardagsrummet

  • Badrum med badkar

  • Ljust läge på tredje våningen

  • Möjlighet att hyra carport

  • Fria parkeringsplatser i området

  • TV-grundutbud via Tele2 ingår

  • Öppet fibernät via iTUX


Området – Lasarettsgatan, Vetlanda
Här bor du i ett lugnt och barnvänligt område med närhet till både natur och service. I området finns grönytor och en mindre lekpark som passar perfekt för familjer eller för dig som uppskattar en avslappnad närmiljö. Samtidigt har du bekvämt avstånd till Vetlandas centrum med butiker, restauranger och övrig service. Goda kommunikationer gör det enkelt att ta sig runt både inom och utanför staden.


Hyresinformation
Värme, varmvatten och Tele2:s grundutbud för TV ingår i hyran. Hushållsel och bredband tecknas separat av hyresgästen via det öppna nätet från iTUX.


Välkommen att skicka in din intresseanmälan på hemsidan och upptäck denna trivsamma bostad i Vetlanda!








Uthyrare

Ulrika Lövfors

E-mail: ulrika.lovfors@heimstaden.com

7 334 kr/mån

Tillgänglig: 1 augusti, 2026
Antal rum: 3 rum och kök
Storlek: 73m²
Våning: 2
Hiss: Nej
Balkong: Nej
Tvättmaskin: Nej
Förråd: Ja
Fastighet: Toppmurklan 1
Objektsnummer: 8344104-1201

Vill du veta mer om våra riktlinjer? Läs vår uthyrningspolicy.

Faciliteter

  • Badkar
  • Fiberanslutning finns
  • Tvättstuga finns i fastigheten
  • Källarförråd
  • Cykelförråd i källarutrymme

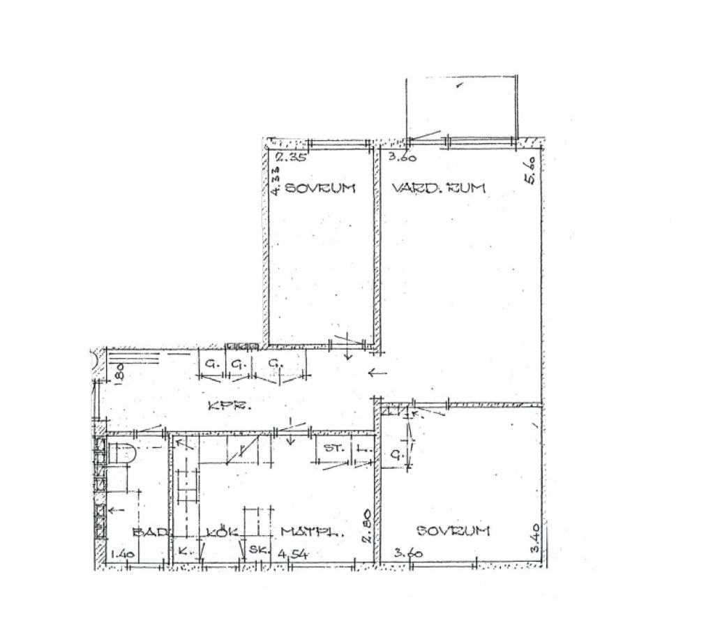
Planlösning

För att se kartan måste du acceptera cookies för Google Maps.
Vänligen ladda om sidan efter att du har ändrat dina cookie-inställningar.


I närheten

Visas nu
Visas nu
Visas nu