Välkommen till ditt nya hem på Campus
Denna välplanerade och moderna tvåa på 54 kvm erbjuder både komfort och stil i ett av Växjös mest populära bostadsområden. Här bor du nära universitetet, med naturen runt hörnet och stadens utbud på bekvämt avstånd.
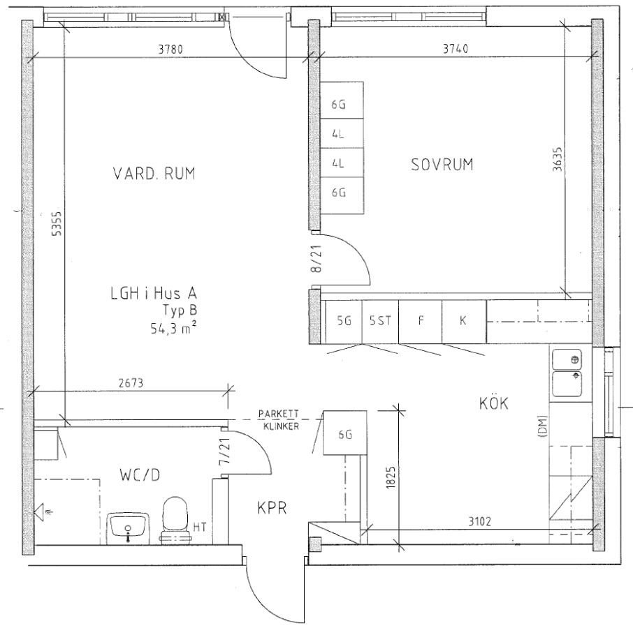
Lägenheten
Lägenheten håller hög standard med genomtänkta materialval och praktiska lösningar som gör vardagen smidig.
Detaljer:
- Hall: Välkomnande entré med klinkergolv, säkerhetsdörr och garderob för förvaring.
- Sovrum: Rymligt sovrum med fyra garderober och plats för dubbelsäng.
- Vardagsrum: Ljust och inbjudande vardagsrum med fransk balkong – perfekt för morgonkaffet eller en lugn kväll.
- Kök: Stilrent kök med stort fönster, gott om skåpförvaring, rymlig kyl och frys samt plats för matbord.
- Badrum: Helkaklat badrum utrustat med dusch, badrumsskåp och handdukstork.
Genomgående parkettgolv och vitmålade väggar skapar en ljus och fräsch känsla i hela lägenheten.
Bekvämligheter
- Värme, vatten, kabel-TV och förråd ingår i hyran
- Fiberanslutning ingår
- Möjlighet att hyra parkeringsplats för 160 kr/mån (i mån av plats)
- Tvättstuga i angränsande byggnad – 8 tvättar/månad samt tvätt- och sköljmedel ingår
- Hyresfritt under juni och juli
Om området – Campus, Växjö
Campusområdet i Växjö är ett levande och attraktivt område med en unik blandning av studentliv, service och natur. Här finns Linnéuniversitetet, gym, restauranger, caféer, livsmedelsbutik och fina promenadstråk runt Trummen och Växjösjön.
Bussförbindelserna till centrum är täta, och cykelvägarna gör det enkelt att ta sig till både stan och universitetet. Området passar perfekt för studenter som söker ett bekvämt och socialt boende med närhet till allt.
Hyresvillkor
- Fiber och förråd ingår i hyran
- Hyresfritt juni–juli
- Rökfritt boende
- Husdjur tillåtet
- Parkeringsplats kan hyras (i mån av plats)
Intresserad?
Denna ljusa och moderna tvåa erbjuder ett attraktivt läge, hög standard och bekvämligheter som gör vardagen enkel.
Kontakta oss redan idag för mer information eller för att boka en visning – den här bostaden blir snabbt uthyrd!
8 362 kr/mån
Tillgänglig: | 1 december, 2025 |
---|---|
Antal rum: | 2 rum och kök 10 stud JJ |
Storlek: | 54m² |
Våning: | 1 |
Hiss: | Nej |
Balkong: | Nej |
---|---|
Tvättmaskin: | Nej |
Fastighet: | Idet 1 |
Byggnadsår: | 1973 |
Objektsnummer: | 1042180-1007 |
Vill du veta mer om våra riktlinjer? Läs vår uthyrningspolicy.
Faciliteter
- Tvättstuga finns i angränsande fastighet
- Säkerhetsdörr
Planlösning

