Växjö - Teleborg

Stallvägen 23

Tillbaka till sök

Studentrum med fransk balkong – bekvämt boende i delad lägenhet


Välkommen till ett smart och prisvärt studentboende där du får ditt eget privata rum i en delad lägenhet – med alla bekvämligheter inkluderade i hyran. Här bor du tryggt och bekvämt med närhet till studier och stadsliv.


Om bostaden


I denna delade lägenhet disponerar du ett eget rum utrustat med säkert cylinderlås för extra trygghet. Kök och badrum delas med en annan student, vilket skapar en social men samtidigt lugn boendemiljö.


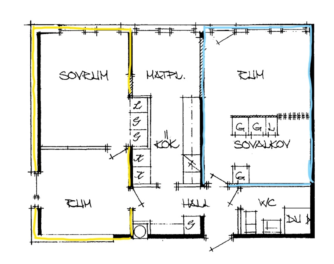
Rummet är omöblerat och är det högra rummet på planlösningen. Planlösningen är smart utformad med en del vid balkongdörren som ger fint ljusinsläpp, samt en avskild del bakom spaljé som passar utmärkt som sovdel. Den genomtänkta uppdelningen gör det enkelt att skapa både en trivsam vardagsyta och en privat sovplats.


Det här ingår i hyran


Här får du ett bekymmersfritt boende där det mesta redan är ordnat:



  • Vatten

  • Värme

  • El

  • Internet

  • Kabel-tv

  • Åtta tvättider per månad

  • Tvätt- och sköljmedel i tvättstugan


Tvättstuga finns i angränsande fastighet och är lättillgänglig för dig som boende.


För dig som har bil finns möjlighet att hyra parkeringsplats i mån av tillgång.


Ett perfekt boende för studenter


Detta boende passar dig som söker ett tryggt, prisvärt och socialt studentboende där du har ditt eget privata rum men delar gemensamma ytor med en annan student. Ett smidigt alternativ för dig som vill fokusera på studierna och samtidigt bo bekvämt. Bilderna är inspiration/exempelbilder- avvikelser kan förekomma. 


Välkommen att höra av dig för mer information eller gör en intresseanmälan så kontaktar vi dig. 

Uthyrare

Carin Silbrand Aronsson

E-mail: carin.silbrandaronsson@heimstaden.com

4 540 kr/mån

Tillgänglig: Nu / enligt överenskommelse
Antal rum: Co-Living
Storlek: 33m²
Våning: 3
Hiss: Nej
Balkong: Nej
Tvättmaskin: Nej
Fastighet: Idet 1
Byggnadsår: 1973
Objektsnummer: 1042250-1206

Vill du veta mer om våra riktlinjer? Läs vår uthyrningspolicy.

Faciliteter

  • Hushållsel ingår i hyran
  • Tvättstuga finns i angränsande fastighet
  • Gemensamt kök

Planlösning

För att se kartan måste du acceptera cookies för Google Maps.
Vänligen ladda om sidan efter att du har ändrat dina cookie-inställningar.


I närheten

Visas nu
Visas nu
Visas nu