Vaxholm - Vaxholm

Idrottsvägen 16 A

Tillbaka till sök

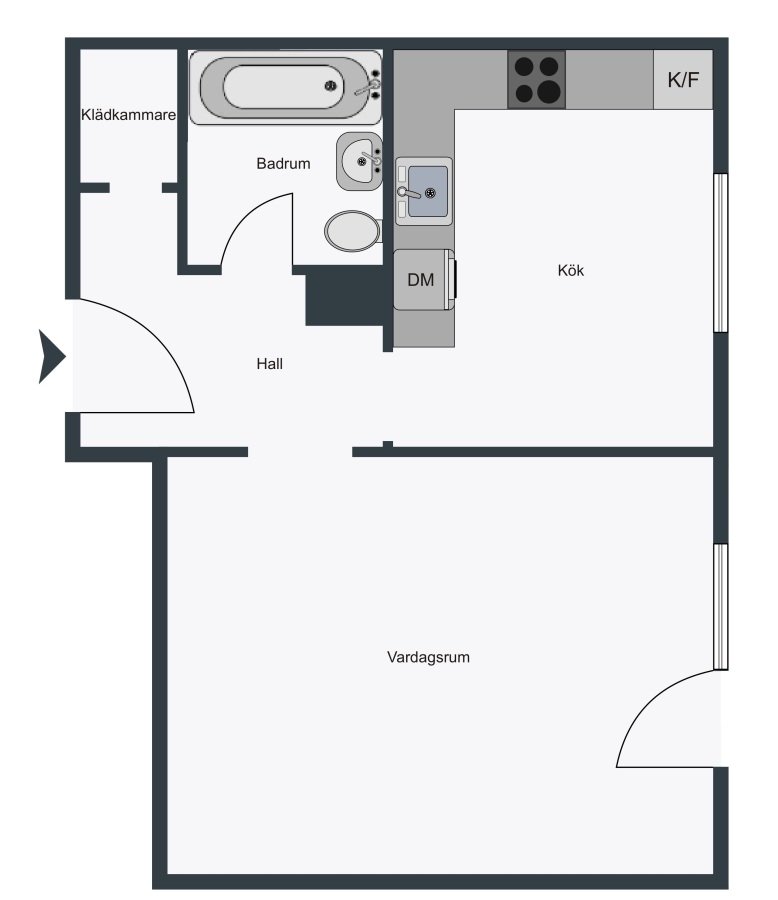
1 rok och kök på plan 1 i Vaxholm 


Nu har du chansen att flytta in i denna välplanerade 1:a med kök på 39 m², belägen på första våningen. Lägenheten har ett äldre skick och hyrs ut i befintligt skick, vilket ger dig möjlighet att skapa ett hem med egen prägel. Här bor du med närhet till grönområden, goda kommunikationer och gemensamma ytor för umgänge.


Bekvämt och välordnat boende




  • 1 rum och kök på 39 m²




  • Belägen på våning 1




  • Äldre standard, hyrs ut i befintligt skick




  • Gemensam innergård med grillplats och lekplats




  • Endast cirka 10 minuters promenad till närmaste busshållplats




  • Parkering finns att hyra i anslutning till området




Ingår i hyran
I hyran ingår värme, varm- och kallvatten samt Telias tv-utbud “Lagom”.
Hyresgästen tecknar eget elavtal och internetabonnemang via Telia.


Om området
Här bor du i ett lugnt och trevligt bostadsområde med god tillgång till både service och natur. I närområdet finns butiker, skolor och grönområden som inbjuder till promenader och avkoppling. Goda kommunikationer gör det enkelt att ta sig vidare till centrum eller andra delar av staden, vilket gör läget perfekt för både studenter och yrkesverksamma.


Uthyrningsinformation
Heimstadens uthyrningspolicy finns att läsa på vår hemsida. För frågor kring sökvillkor och hur vi väljer våra hyresgäster, kontakta kundservice på 0770-111050 eller via e-post på kundservice@heimstaden.com.
Observera att intresseanmälan endast görs via vår hemsida – mejl direkt till uthyraren behandlas inte som ansökan.


Visning och intresseanmälan
Visning kommer att hållas.
Välkommen med din intresseanmälan och ta chansen att hitta ditt nya hem!

Uthyrare

Gabriel Öberg

E-mail: gabriel.oberg@heimstaden.com

5 484 kr/mån

Tillgänglig: 1 februari, 2026
Antal rum: 1 rum och kök
Storlek: 39m²
Våning: 1
Hiss: Nej
Balkong: Nej
Tvättmaskin: Nej
Förråd: Ja
Fastighet: Kulan 5
Byggnadsår: 1972
Objektsnummer: 6892132-1102

Vill du veta mer om våra riktlinjer? Läs vår uthyrningspolicy.

Faciliteter

  • Bredband tecknas av dig som kund
  • Golvvärme Badrum, kostnad för uppvärmning ingår ej
  • Tvättstuga finns i fastigheten
  • Handdukstork, kostnad för uppvärmning ingår inte
  • Entréförråd

Planlösning

För att se kartan måste du acceptera cookies för Google Maps.
Vänligen ladda om sidan efter att du har ändrat dina cookie-inställningar.


I närheten

Visas nu
Visas nu
Visas nu