Umeå - Mariehem

Mariehemsvägen 19 C

Tillbaka till sök

Studentlägenhet till uthyrning i Mariehem – renoverad med smart planlösning och närhet till universitetet


Välkommen till en modern och välplanerad studentlägenhet i populära Mariehem. Här bor du bekvämt i en stilren bostad med genomtänkta ytor och närhet till både studier och stadsliv.


Om lägenheten
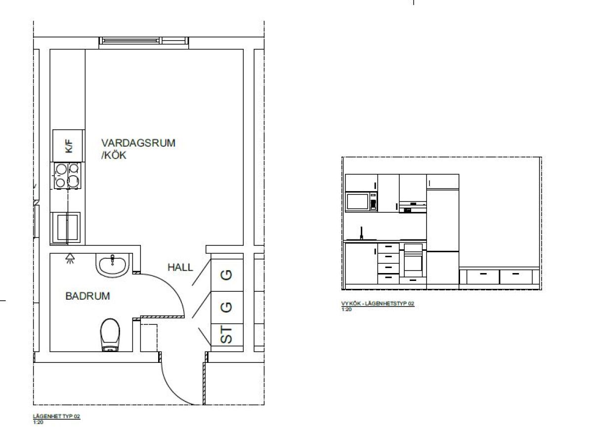
Denna renoverade lägenhet (sept 2020) erbjuder en ljus och trivsam miljö med genomgående vita väggar och vackert trägolv. Bostaden är smart disponerad för att maximera varje kvadratmeter och passar perfekt för studentlivet.


Observera att bilderna i annonsen fungerar som inspiration/exempel och att avvikelser därför kan förekomma.


Funktioner och bekvämligheter



  • Fullt utrustat kök med induktionshäll, varmluftsugn, mikro och goda förvaringsmöjligheter

  • Tre rymliga garderober i hallen

  • Ljust och helkaklat badrum med dusch, golvvärme och handdukstork

  • Inbyggd sittbänk – perfekt för frukost eller studier med utsikt över området

  • Fiberanslutning finns (eget abonnemang tecknas)

  • Förråd i källaren

  • Hiss i fastigheten

  • Parkering finns att hyra i området


Område och läge
Mariehem är ett uppskattat studentområde med ett lugnt och trivsamt kvarter samtidigt som du har nära till allt du behöver. Umeå universitet ligger endast några kilometer bort och nås enkelt med cykel eller kollektivtrafik. Även centrum finns inom bekvämt avstånd. I närområdet finns livsmedelsbutik, grönområden och goda kommunikationer, vilket gör detta till ett perfekt läge för studenter som vill ha balans mellan studier och fritid.


Hyresvillkor



  • Du ska vara antagen vid Umeå universitet, SLU i Umeå eller Yrkeshögskolan i Umeå

  • Studietakt om minst 15 högskolepoäng per termin krävs

  • Studieintyg eller antagningsbesked laddas upp via Mina Sidor


Välkommen att skicka in din intresseanmälan via denna sida.

Andrea Berg

Uthyrare

Andrea Berg

E-mail: andrea.berg@heimstaden.com

5 004 kr/mån

Tillgänglig: 1 juli, 2026
Antal rum: 1 rum och kokvrå stud
Storlek: 20m²
Våning: 0
Hiss: Ja
Balkong: Nej
Tvättmaskin: Nej
Fastighet: Trandansen 1
Objektsnummer: 1199133-1003

Vill du veta mer om våra riktlinjer? Läs vår uthyrningspolicy.

Faciliteter

  • Hiss i fastigheten
  • Tvättstuga finns i fastigheten
  • Säkerhetsdörr

Planlösning

För att se kartan måste du acceptera cookies för Google Maps.
Vänligen ladda om sidan efter att du har ändrat dina cookie-inställningar.


I närheten

Visas nu
Visas nu
Visas nu