Umeå - Mariehem

Mariehemsvägen 19 B

Tillbaka till sök

Renoverad studentlägenhet i Mariehem – stilrent boende med smart planlösning


Välkommen till en modern och välplanerad studentlägenhet i populära Mariehem – perfekt för dig som söker ett stilrent och bekvämt boende nära både universitetet och stadens utbud.


Om bostaden
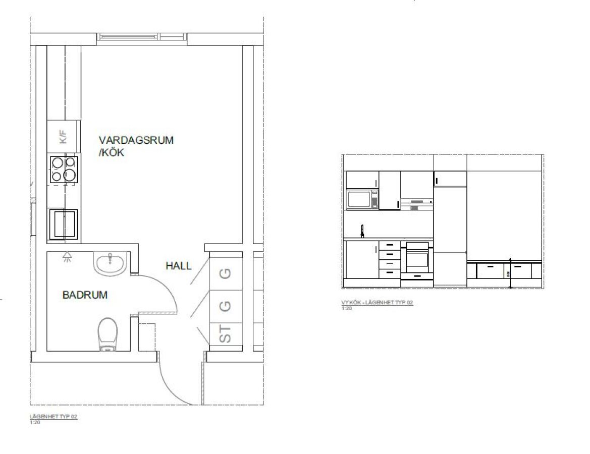
Denna studentlägenhet om 20 kvm är belägen en trappa upp i huset, med tillgång till hiss. Lägenheten renoverades 2020 och erbjuder en ljus och modern interiör med genomgående vita väggar och vackert trägolv.


Köket är fullt utrustat med induktionshäll, varmluftsugn och mikro, samt goda förvaringsmöjligheter. I hallen finns tre rymliga garderober som ger gott om plats för förvaring. Det helkaklade badrummet är ljust och fräscht, utrustat med dusch, golvvärme och handdukstork för extra komfort.


En inbyggd sittbänk vid fönstret skapar en trivsam plats för exempelvis frukost eller studier, med fin utsikt över området.


Observera att bilderna i annonsen fungerar som inspiration/exempel och att avvikelser därför kan förekomma.


Bekvämligheter



  • Totalrenoverad med moderna materialval

  • Fullt utrustat kök med induktionshäll och ugn

  • Ljust badrum med golvvärme och handdukstork

  • Tre garderober i hallen

  • Fiberanslutning (eget abonnemang tecknas)

  • Förråd i källaren

  • Hiss i fastigheten

  • Gemensam bastu

  • Parkeringsplats finns att hyra i området


I hyran ingår värme och vatten. Hushållsel tillkommer.


Om området – Mariehem
Mariehem är ett av Umeås mest uppskattade studentområden med närhet till både Umeå universitet (cirka 3 km) och centrum (cirka 5 km). Här bor du med smidiga bussförbindelser och bra cykelvägar. I området finns även matbutik, service och träningsmöjligheter. Närheten till Nydalasjön ger fina möjligheter till motion, bad och friluftsliv året runt – perfekt för en aktiv studentvardag.


För att hyra bostaden
För att anmäla intresse behöver du vara antagen till Umeå universitet, SLU i Umeå eller Yrkeshögskolan i Umeå samt studera minst 15 högskolepoäng per termin. Ansökan sker via denna sida, och du uppmanas att ladda upp studieintyg eller antagningsbesked på Mina Sidor.


Välkommen att skicka in din ansökan och upplev ett modernt studentboende i Mariehem!

Andrea Berg

Uthyrare

Andrea Berg

E-mail: andrea.berg@heimstaden.com

5 159 kr/mån

Tillgänglig: 1 juli, 2026
Antal rum: 1 rum och kokvrå stud
Storlek: 20m²
Våning: 1
Hiss: Ja
Balkong: Nej
Tvättmaskin: Nej
Fastighet: Trandansen 1
Objektsnummer: 1199132-1107

Vill du veta mer om våra riktlinjer? Läs vår uthyrningspolicy.

Faciliteter

  • Hiss i fastigheten
  • Tvättstuga finns i fastigheten
  • Säkerhetsdörr

Planlösning

För att se kartan måste du acceptera cookies för Google Maps.
Vänligen ladda om sidan efter att du har ändrat dina cookie-inställningar.


I närheten

Visas nu
Visas nu
Visas nu