Strängnäs - Södra Finningetorp

Åkerbärsvägen 12 C

Tillbaka till sök

Ljus och modern 3-rumslägenhet att hyra på Åkerbärsvägen


Välkommen till en smakfull och välplanerad lägenhet där stilren design möter hög funktionalitet. Här bor du ljust och bekvämt med genomtänkta materialval och moderna bekvämligheter.


Ett hem med omtanke i varje detalj
Bostaden öppnar upp med en rymlig och välkomnande entré med klinkergolv och god förvaring i både garderob och förråd. De ljusa väggarna och den fina ekparketten skapar en harmonisk och tidlös känsla som löper genom hela lägenheten.


Stilrent kök och moderna badrumslösningar
Det smakfulla Marbodalköket erbjuder diskmaskin, kyl och frys samt ugn och spis med keramikhäll – perfekt för dig som uppskattar både design och praktisk funktion.
Badrummet är helkaklat med klinkergolv, glasad duschhörna, handdukstork och en kombinerad tvätt- och torkmaskin för extra bekvämlighet.


Hyra och drift
I hyran ingår värme och kallvatten. Varmvatten debiteras enligt individuell mätning. Hushållsel tecknas separat av hyresgästen.


Rökfritt boende
Fastigheten är helt rökfri, både i lägenheter och på tillhörande uteplatser samt allmänna utrymmen.


Om området – Tosterö
Tosterö är ett omtyckt och lugnt område med närhet till både natur och Strängnäs stadskärna. Här finns goda kommunikationer med bussförbindelser som snabbt tar dig vidare mot centrum, skolor, service och tågstation. Området präglas av grönska, vackra promenadstråk och närhet till Mälarens vatten, vilket skapar en trivsam och naturnära livsmiljö. Ett perfekt läge för dig som söker en balanserad vardag med både avkoppling och smidig tillgång till stadens utbud.


Kontakta oss
Känns detta som ditt nästa hem? Skicka in din intresseanmälan via hemsidan.
Har du frågor är du välkommen att kontakta ansvarig uthyrare.


Välkommen till Tosterö – Välkommen Heim.

Uthyrare

Felicity Löfkvist

E-mail: felicity.lofkvist@heimstaden.com

10 282 kr/mån

Tillgänglig: Nu / enligt överenskommelse
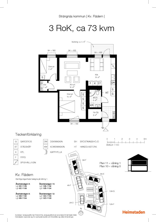
Antal rum: 3 rum och kök
Storlek: 73m²
Våning: 1
Hiss: Nej
Balkong: Ja
Tvättmaskin: Kombimaskin
Diskmaskin: Ja
Förråd: Ja
Fastighet: Flädern 4
Byggnadsår: 2023
Objektsnummer: 6416152-1105

Vill du veta mer om våra riktlinjer? Läs vår uthyrningspolicy.

Faciliteter

  • Sappas TV-baspaket ingår i hyran
  • Bredband tecknas av dig som kund
  • Hushållsel ingår inte i hyran
  • Handdukstork, kostnad för uppvärmning ingår inte
  • Kombinerad tvätt/tork
  • Individuellmätning Varmvatten
  • Rökfri Fastighet
  • Dubbel kyl/frys
  • Fastigheten har postboxar
  • Spisfläkt
  • Balkong
  • Varmluftsugn finns
  • Förråd i lägenheten
  • Spis med induktionshäll
  • Säkerhetsdörr
  • Duschvägg/ar
  • Diskmaskin finns
  • Cykelställ på gården

Planlösning

För att se kartan måste du acceptera cookies för Google Maps.
Vänligen ladda om sidan efter att du har ändrat dina cookie-inställningar.


I närheten

Visas nu
Visas nu
Visas nu