Norrköping - Centralt

Tunnbindaregatan 11

Tillbaka till sök

5:a uthyres i centrala Norrköping – 193 kvm med balkong vid Skvallertorget


Välkommen till denna imponerande och välplanerade femrumslägenhet på Tunnbindaregatan 11 – ett hem för dig som söker generösa ytor, komfort och ett centralt läge med närhet till stadens bästa utbud.


Om bostaden
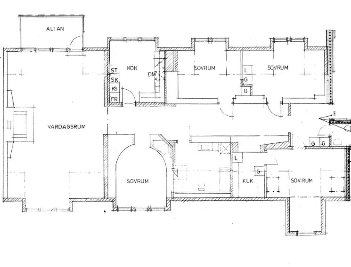
Lägenheten erbjuder hela 193 kvm boyta med en genomtänkt planlösning och stora, ljusa rum som skapar en luftig och inbjudande atmosfär. Här finns gott om plats för både familjeliv och sociala tillställningar. Vardagsrummet rymmer enkelt både soffgrupp och matsalsdel, medan köket erbjuder goda arbetsytor och plats för matgrupp.


De många rummen ger stor flexibilitet – perfekt för sovrum, hemmakontor eller gästrum efter behov. Från bostaden nås även en balkong som blir en naturlig förlängning av hemmet. Lägenheten är belägen på fjärde våningen och nås smidigt via hiss.


Fastighet & bekvämligheter



  • Generös planlösning om 193 kvm

  • Balkong

  • Belägen på våning 4

  • Hiss från entréplan i fastigheten

  • Värme, vatten och TV-utbud ingår i hyran


Område – Centrala Norrköping / Skvallertorget
Här bor du i ett attraktivt område vid Skvallertorget, med ett stenkast till Campus Norrköping och det vackra industrilandskapet med sina porlande vattenfall och unika miljöer. I närheten finns även Folkparken med stora grönytor och aktiviteter, perfekt för både avkoppling och familjeliv.


Längs Kungsgatan hittar du ett brett utbud av restauranger, caféer och matbutiker, och stadens centrum ligger inom bekvämt gångavstånd. För den som uppskattar promenader finns fina stråk längs Strömmen. Kommunikationerna är mycket goda med både buss och spårvagn i närheten.


Välkommen hem
Detta är ett boende för dig som söker ett rymligt och centralt hem med det lilla extra. Varmt välkommen att skicka in din ansökan via vår hemsida – vi ser fram emot din intresseanmälan!

Anneli Stendahl

Uthyrare

Anneli Stendahl

E-mail: anneli.stendahl@heimstaden.com

19 718 kr/mån

Tillgänglig: 1 juli, 2026
Antal rum: 5 rum och kök
Storlek: 193m²
Våning: 4
Hiss: Ja
Balkong: Ja
Tvättmaskin: Nej
Fastighet: Kapellhorvan 10
Byggnadsår: 1991
Objektsnummer: 7807101-1402

Vill du veta mer om våra riktlinjer? Läs vår uthyrningspolicy.

Faciliteter

  • Hiss i fastigheten
  • Balkong

Planlösning

För att se kartan måste du acceptera cookies för Google Maps.
Vänligen ladda om sidan efter att du har ändrat dina cookie-inställningar.


I närheten

Visas nu
Visas nu
Visas nu