Malmö - Rådmansvången

Möllevångsgatan 29 A

Tillbaka till sök

Renoverad 3:a med balkong och hiss – centralt och bekvämt boende


Välkommen att hyra denna mysiga och genomgående trerumslägenhet på fjärde våningen med hiss. Bostaden kommer att genomgå en omfattande renovering innan inflyttning, vilket ger dig ett modernt och fräscht hem med hög komfort.


Om bostaden
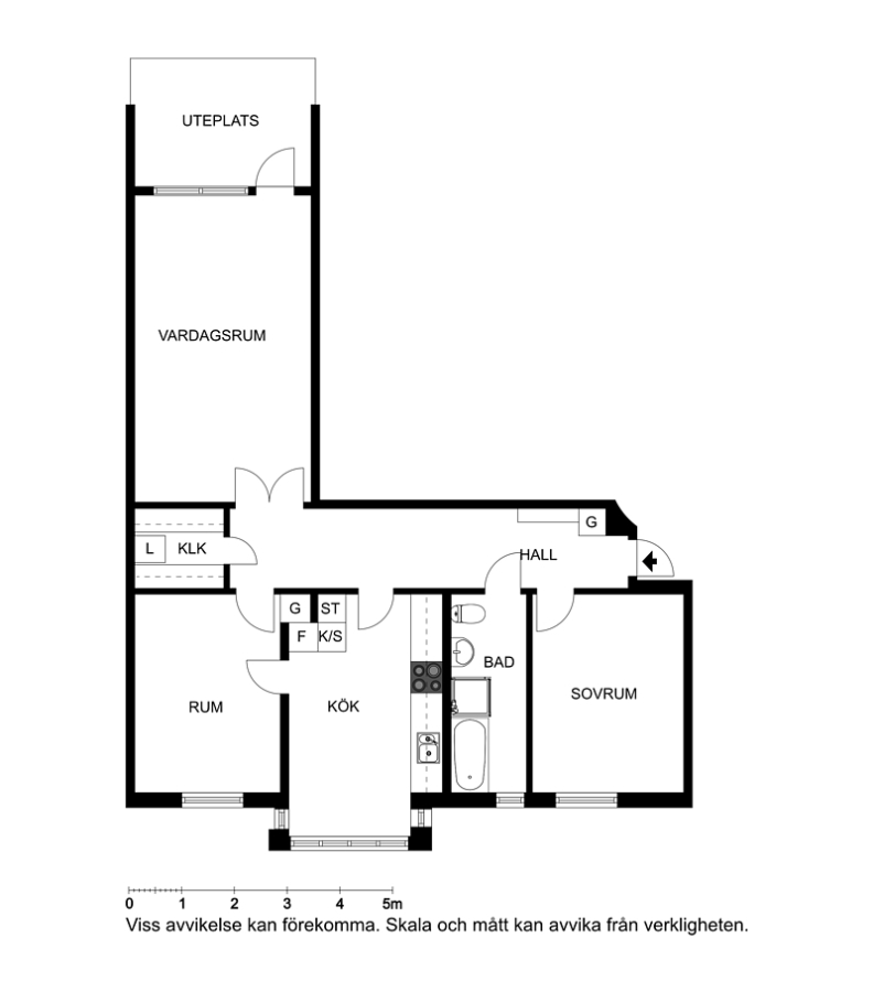
Lägenheten erbjuder en välplanerad och genomgående planlösning med fint ljusinsläpp från två håll. I hallen möts du av klinkergolv vid entrén som övergår i parkett – ett stilrent och praktiskt val som sedan fortsätter genom resten av bostaden och skapar en enhetlig känsla.


Köket rivs och ersätts med ett helt nytt, modernt kök utrustat med nya vitvaror såsom mikrovågsugn, diskmaskin, kyl och frys, spishäll samt inbyggd ugn. Här finns gott om arbetsyta och en naturlig plats för matbord vid fönstret.


Vardagsrummet är rymligt och har utgång till en generös balkong mot den stora innergården – perfekt för avkoppling. Sovrummen är belägna mot gatan och erbjuder bra möbleringsmöjligheter. Förvaringen är väl tillgodosedd tack vare en rymlig klädkammare.


Badrummet är redan helkaklat och renoverades 2015. Här kommer det endast att utrustas med duschvägg och tvättpelare.


Samtliga väggar och tak målas i vitt inför inflyttning, vilket ger ett ljust och fräscht intryck genom hela bostaden.


Om området - Triangeln
Bostaden är belägen i ett attraktivt och centralt område med närhet till både service och kommunikationer. Här bor du med gångavstånd till mataffärer, restauranger och caféer samt grönområden som erbjuder fina möjligheter till promenader och rekreation. Goda kommunikationer i form av buss och tåg gör det enkelt att ta sig till stadens övriga delar, vilket passar både pendlare, par och mindre familjer.


Välkommen med din intresseanmälan
Detta är ett utmärkt tillfälle att hyra en nyrenoverad och välplanerad trea med balkong och hiss i ett trivsamt område. Gör gärna en intresseanmälan via vår hemsida för att ha chans att kalla denna bostad ditt nya hem.


Övrigt
Värme, vatten och kabel-tv grundutbud ingår i den angivna hyran. Bredband och hushållsel ingår ej. Alla intresseanmälningar på våra lediga lägenheter görs via hemsidan. För mer info om vår uthyrningspolicy hittar ni på: https://heimstaden.com/blogg/praktisk-information/uthyrningspolicy/.  Vi reserverar oss för eventuella felskrivningar. 


Observera att vissa interiörbilderna är referensbilder på materialval. Vissa bilder är från den aktuella lägenheten men är digitalt möblerade och justerade. Avvikelser förekommer. Eftersom lägenheten renoveras kommer det inte erbjudas visning.

Uthyrare

Therese Jönsson

E-mail: therese.jonsson@heimstaden.com

14 781 kr/mån

Tillgänglig: 1 maj, 2026
Antal rum: 3 rum och kök
Storlek: 91m²
Våning: 4
Hiss: Ja
Balkong: Ja
Tvättmaskin: Tvättpelare
Diskmaskin: Ja
Förråd: Ja
Fastighet: Kråkan 32
Byggnadsår: 1929
Objektsnummer: 7432111-1305

Vill du veta mer om våra riktlinjer? Läs vår uthyrningspolicy.

Faciliteter

  • Hiss i fastigheten
  • Tvättstuga finns i fastigheten
  • Tvättpelare
  • Porttelefon
  • Spisfläkt
  • Balkong
  • Inbyggnadsugn
  • Källarförråd
  • Spis med häll
  • Mikrovågsugn
  • Duschvägg/ar
  • Diskmaskin finns
  • Cykelförrråd i låst utrymme på gården

Planlösning

För att se kartan måste du acceptera cookies för Google Maps.
Vänligen ladda om sidan efter att du har ändrat dina cookie-inställningar.


I närheten

Visas nu
Visas nu
Visas nu