Lund - Papegojlyckan

Vildandsvägen 20 D

Tillbaka till sök

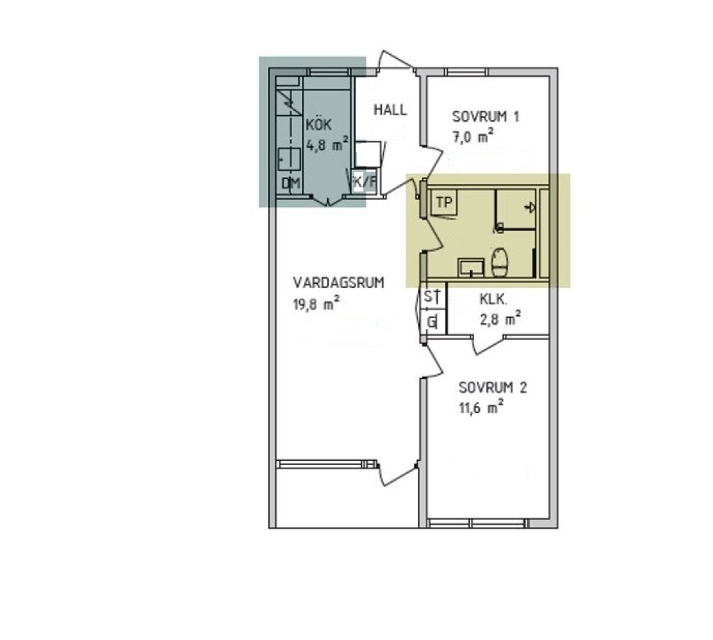
Välkommen till en trerumslägenhet på tredje våning med balkong i sydväst.


Redan i hallen märks den genomtänkta arkitekturen, med en nedsänkt hallmatta i klinkergolv och den klassiska hatthyllan Nostalgi av Gunnar Bolin . Golven består av klinker i hall, kök och badrum, samt massivt industriparkettgolv i ek i övriga rum, vilket ger en robust och elegant känsla.


Köket från Kvänum håller hög kvalitet med pärlgröna luckor, helintegrerad diskmaskin och bänkskiva med Sigvard Bernadottes välkända mönster Virrvarr. Utrustningen inkluderar spis med häll och ugn, kyl/frys samt spisfläkt.


Lägenheten har två välplanerade sovrum, varav det ena med rymlig klädkammare. Förvaringsmöjligheterna är generösa tack vare bevarade originalskåp i hallen samt städ- och linneskåp i vardagsrummet. Det totalrenoverade badrummet är utrustat med dusch, tvättställ, handdukstork, golvvärme samt både tvättmaskin och torktumlare – allt för en bekväm vardag. Denna lägenhet har renoverats i april 2018. Visst slitage kan förekomma. Bilderna interiört är exempelbilder.


Området
Vildandsvägen ligger i ett lugnt och trivsamt bostadsområde i Lund med närhet till både grönområden och stadens utbud. Här bor du med goda kommunikationer via buss och välutbyggda cykelvägar som smidigt tar dig till Lunds centrum, universitetet och tågstationen.


Övrig information



  • Värme, vatten, kabel-tv (Tele2 basutbud) och bredband från Bredband2 ingår i hyran

  • Hyresgästen tecknar eget elavtal och hemförsäkring

  • Tillhörande förråd på markplan

  • Gemensam tvättstuga finns på området

  • Lägenheten hyrs ut i befintligt skick

  • Vi reserverar oss för eventuella felskrivningar

  • Alla intresseanmälningar på våra lediga lägenheter görs via hemsidan


 


Är detta ett boende som passar dig är du välkommen att skicka in en intresseanmälan

 


 


 

Uthyrare

Fanny Wegard

E-mail: fanny.wegard@heimstaden.com

9 565 kr/mån

Tillgänglig: 1 augusti, 2026
Antal rum: 3 rum och kök
Storlek: 60m²
Våning: 3
Hiss: Nej
Balkong: Ja
Tvättmaskin: Tvättpelare
Diskmaskin: Ja
Förråd: Ja
Fastighet: Vildanden 13
Byggnadsår: 1964
Objektsnummer: 1165194-1205

Vill du veta mer om våra riktlinjer? Läs vår uthyrningspolicy.

Faciliteter

  • Kabel-TV Ingår i hyran
  • Tvättstuga finns i angränsande fastighet
  • Tvättpelare
  • Fastigheten har postboxar
  • Balkong
  • Gårdsförråd
  • Duschvägg/ar
  • Diskmaskin finns

Planlösning

För att se kartan måste du acceptera cookies för Google Maps.
Vänligen ladda om sidan efter att du har ändrat dina cookie-inställningar.


I närheten

Visas nu
Visas nu
Visas nu