Lund - Papegojlyckan

Vildandsvägen 22 D

Tillbaka till sök

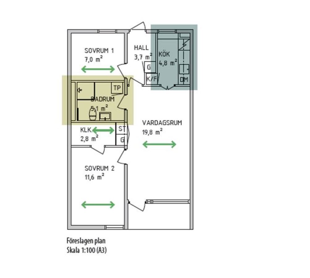
Välkommen till en trevlig trerumslägenhet på våning 2 med balkong.


I hallen möts du av slitstarkt klinkergolv och med bra förvaringsmöjligheter i form av garderober. Övriga rum i lägenheten utgörs av klinker i badrum och kök samt ett industriparkettgolv i ek i övriga rum.
Högkvalitativa kök från Kvänum med pärlgröna luckor och en helintegrerad diskmaskin samt bänkskiva med Sigvard Bernadottes kända designmönster Virrvarr. Vardagsrum intill kök, två sovrum varav ett lite större med intilliggande klädkammare.
Totalrenoverat badrum med dusch, golvvärme (el). I badrummet finner du även tvättmaskin och torktumlare.
Denna lägenhet är renoverad maj 2019, visst slitage kan förekomma.


Området
Vildandsvägen ligger i ett lugnt och trivsamt bostadsområde i Lund med närhet till både grönområden och stadens utbud. Här bor du med goda kommunikationer via buss och välutbyggda cykelvägar som smidigt tar dig till Lunds centrum, universitetet och tågstationen.


Viktig information



  • Värme, vatten, kabel-tv (Tele2 basutbud) och bredband från Bredband2 ingår i hyran

  • Hyresgästen tecknar eget elavtal och hemförsäkring

  • Tillhörande förråd på markplan

  • Gemensam tvättstuga finns på området

  • Lägenheten hyrs ut i befintligt skick

  • Vi reserverar oss för eventuella felskrivningar

  • Alla intresseanmälningar på våra lediga lägenheter görs via hemsidan


Välkommen att lämna en intresseanmälan!

Uthyrare

Fanny Wegard

E-mail: fanny.wegard@heimstaden.com

9 822 kr/mån

Tillgänglig: 1 augusti, 2026
Antal rum: 3 rum och kök
Storlek: 59m²
Våning: 2
Hiss: Nej
Balkong: Ja
Tvättmaskin: Tvättpelare
Diskmaskin: Ja
Förråd: Ja
Fastighet: Vildanden 13
Byggnadsår: 1964
Objektsnummer: 1165204-1108

Vill du veta mer om våra riktlinjer? Läs vår uthyrningspolicy.

Faciliteter

  • Kabel-TV Ingår i hyran
  • Golvvärme Bad/WC
  • Tvättstuga finns i fastigheten
  • Tvättpelare
  • Fastigheten har postboxar
  • Balkong
  • Gårdsförråd
  • Duschvägg/ar
  • Diskmaskin finns

Planlösning

För att se kartan måste du acceptera cookies för Google Maps.
Vänligen ladda om sidan efter att du har ändrat dina cookie-inställningar.


I närheten

Visas nu
Visas nu
Visas nu