Lund - Papegojlyckan

Vildandsvägen 4 F

Tillbaka till sök

Välkommen till en 3:a på våning 2 med sydvästbalkong


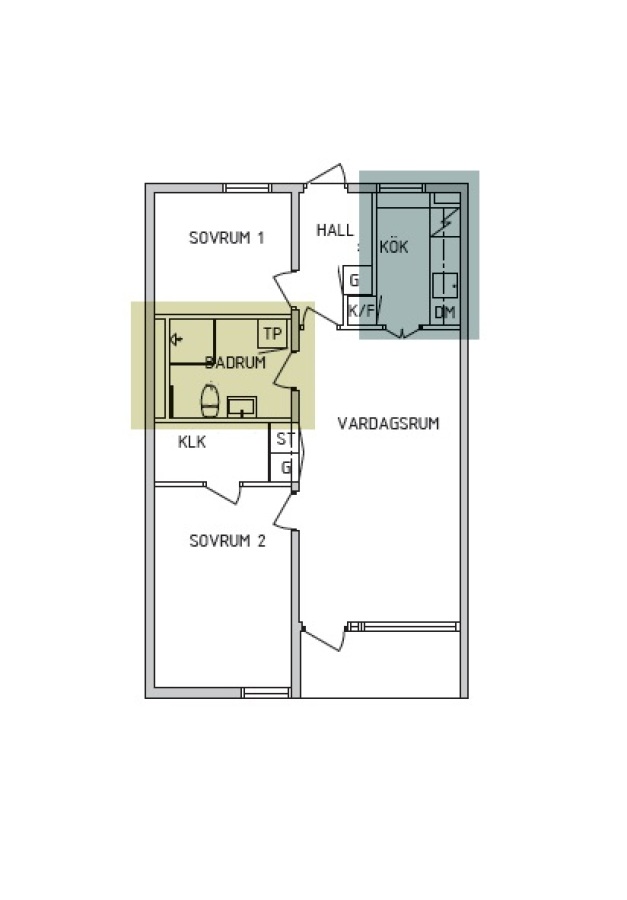
Redan i hallen märks den genomtänkta arkitekturen, med en nedsänkt hallmatta i klinkergolv och den klassiska hatthyllan Nostalgi av Gunnar Bolin . Golven består av klinker i hall, kök och badrum, samt massivt industriparkettgolv i ek i övriga rum, vilket ger en robust och elegant känsla.


Köket från Kvänum håller hög kvalitet med pärlgröna luckor, helintegrerad diskmaskin och bänkskiva med Sigvard Bernadottes välkända mönster Virrvarr. Utrustningen inkluderar spis med häll och ugn, kyl/frys samt spisfläkt.


Lägenheten har två välplanerade sovrum, varav det ena med rymlig klädkammare. Förvaringsmöjligheterna är generösa tack vare bevarade originalskåp i hallen samt städ- och linneskåp i vardagsrummet.


Det totalrenoverade badrummet är utrustat med dusch, tvättställ, handdukstork, golvvärme samt både tvättmaskin och torktumlare – allt för en bekväm vardag. Denna lägenhet har renoverats juni 2021. Visst slitage kan förekomma. Bilderna interiört är exempelbilder.


Området
Vildandsvägen ligger i ett lugnt och trivsamt bostadsområde i Lund med närhet till både grönområden och stadens utbud. Här bor du med goda kommunikationer via buss och välutbyggda cykelvägar som smidigt tar dig till Lunds centrum, universitetet och tågstationen.


Övrig information



  • Värme, vatten, kabel-tv (Tele2 basutbud) och bredband från Bredband2 ingår i hyran

  • Hyresgästen tecknar eget elavtal och hemförsäkring

  • Tillhörande förråd på markplan

  • Gemensam tvättstuga finns på området

  • Lägenheten hyrs ut i befintligt skick

  • Vi reserverar oss för eventuella felskrivningar

  • Alla intresseanmälningar på våra lediga lägenheter görs via hemsidan


Är detta en lägenhet för dig, glöm inte att göra en intresseanmälan!


 





Uthyrare

Fanny Wegard

E-mail: fanny.wegard@heimstaden.com

9 805 kr/mån

Tillgänglig: 1 augusti, 2026
Antal rum: 3 rum och kök
Storlek: 59m²
Våning: 2
Hiss: Nej
Balkong: Ja
Tvättmaskin: Tvättpelare
Diskmaskin: Ja
Förråd: Ja
Fastighet: Vildanden 13
Byggnadsår: 1964
Objektsnummer: 1165116-1103

Vill du veta mer om våra riktlinjer? Läs vår uthyrningspolicy.

Faciliteter

  • Kabel-TV Ingår i hyran
  • Tvättstuga finns i angränsande fastighet
  • Tvättpelare
  • Fastigheten har postboxar
  • Balkong
  • Gårdsförråd
  • Duschvägg/ar
  • Diskmaskin finns

Planlösning

För att se kartan måste du acceptera cookies för Google Maps.
Vänligen ladda om sidan efter att du har ändrat dina cookie-inställningar.


I närheten

Visas nu
Visas nu
Visas nu