Välkommen till en tvårumslägenhet på markplan med uteplats.
När du kliver in i hallen väntar en genomtänkt design och svensk möbelklassiker, hallmattan smälter samman med klinkergolvet och hatthyllan Nostalgi av Gunnar Bolin. Lägenheten erbjuder en välplanerad planlösning med bra förvaringsmöjligheter. I hallen finns platsbyggda originalskåp som kompletterar förvaringen på ett praktiskt sätt.
Det högkvalitativa köket från Kvänum har pärlgröna luckor, en integrerad diskmaskin och en bänkskiva med Sigvard Bernadottes klassiska mönster Virrvarr. Här finns även spis med häll och ugn, kyl/frys samt spisfläkt
Det renoverade badrummet är utrustat med dusch, tvättställ, handdukstork och golvvärme. Dessutom finns både tvättmaskin och torktumlare för extra bekvämlighet. Golven består av klinker i hall, kök och badrum, medan övriga rum har ett massivt industriparkettgolv i ek.
Sovrummet har en rymlig klädkammare och i vardagsrummet finns dessutom praktiskt städ- och linneskåp. Uteplatsen i sydvästläge erbjuder sol större delen av dagen och blir en naturlig plats för avkoppling. Denna lägenhet har renoverats i oktober 2018.
Området
Vildandsvägen ligger i ett lugnt och trivsamt bostadsområde i Lund med närhet till både grönområden och stadens utbud. Här bor du med goda kommunikationer via buss och välutbyggda cykelvägar som smidigt tar dig till Lunds centrum, universitetet och tågstationen.
Viktig information
- Värme, vatten, kabel-tv (Tele2 basutbud) och bredband från Bredband2 ingår i hyran
- Hyresgästen tecknar eget elavtal och hemförsäkring
- Tillhörande förråd finns i källare
- Gemensam tvättstuga finns på området
- Lägenheten hyrs ut i befintligt skick
- Vi reserverar oss för eventuella felskrivningar
- Alla intresseanmälningar på våra lediga lägenheter görs via hemsidan
- Bilderna interiört är exempelbilder, kan skilja sig från verkligheten något
Välkommen att göra en intresseanmälan!
8 888 kr/mån
| Tillgänglig: | 1 augusti, 2026 |
|---|---|
| Antal rum: | 2 rum och kök |
| Storlek: | 51m² |
| Våning: | 1 |
| Hiss: | Nej |
| Balkong: | Nej |
| Tvättmaskin: | TM/TT |
|---|---|
| Diskmaskin: | Ja |
| Förråd: | Ja |
| Fastighet: | Vildanden 13 |
| Byggnadsår: | 1964 |
| Objektsnummer: | 1165126-1001 |
Vill du veta mer om våra riktlinjer? Läs vår uthyrningspolicy.
Faciliteter
- Kabel-TV Ingår i hyran
- Bottenvåning/markplan
- Lägenheten är utrustad med tvättmaskin och torktumlare
- Fastigheten har postboxar
- Källarförråd
- Diskmaskin finns
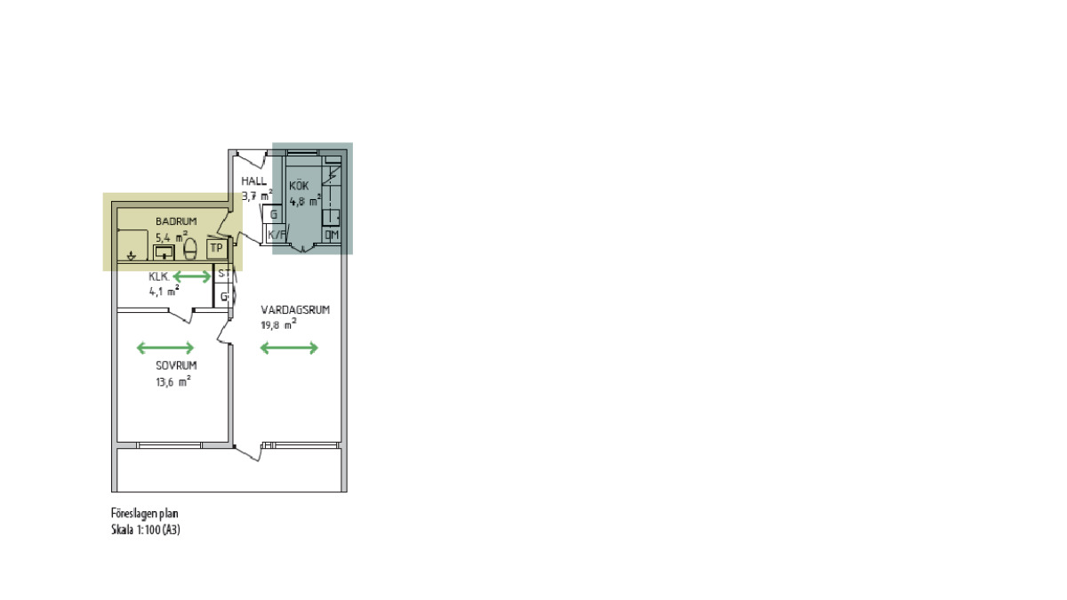
Planlösning