Luleå - Hertsön

Flugsnappargränd 2

Tillbaka till sök

Kvadratsmart och modern lägenhet med balkong nära natur och stad – uthyres


Välkommen till ett välplanerat och trivsamt hem där varje kvadratmeter är smart utnyttjad. Här bor du bekvämt med närhet till både natur och stadens utbud – ett perfekt val för dig som söker balans i vardagen.


Om bostaden
Denna ljusa lägenhet erbjuder en modern standard med genomtänkta materialval och en härlig balkong som förlänger bostadens ytor. Här är det enkelt att skapa en personlig och hemtrevlig miljö.


Funktioner och bekvämligheter



  • Stilrent kök från JKE med vita luckor

  • Fullt utrustat kök med diskmaskin, induktionshäll och varmluftsugn

  • Helkaklat badrum med dusch, kommod, handdukstork och badrumsskåp

  • Genomgående vitmålade väggar, tak och snickerier

  • Ekparkett i samtliga rum

  • Nya garderober med goda förvaringsmöjligheter

  • Säkerhetsdörr för ökad trygghet

  • Balkong som ger extra rymd och ljusinsläpp


I hyran ingår värme, vatten, TV-bas utbud samt internet (100 Mbit). Hushållsel tillkommer.


Om området
Bostaden är belägen i ett lugnt och naturnära område med goda kommunikationer. Här finns smidiga bussförbindelser till både centrum och universitetsområdet, vilket gör läget idealiskt för såväl studenter som yrkesverksamma. I närheten hittar du förskolor, skolor, livsmedelsbutik, bageri och restauranger – allt du behöver inom bekvämt räckhåll. Området erbjuder även fina möjligheter till promenader och friluftsliv, vilket bidrar till en trivsam och aktiv livsstil.


Övrigt
Observera att bilderna är från en visningslägenhet och att avvikelser kan förekomma.


Välkommen att kontakta oss för mer information eller gör en intresseanmälan.

Uthyrare

Marita Vuorela

E-mail: marita.vuorela@heimstaden.com

7 033 kr/mån

Tillgänglig: 1 juli, 2026
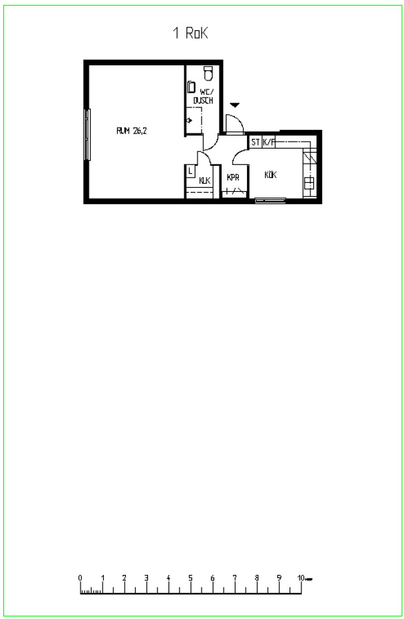
Antal rum: 1 rum och kök
Storlek: 48m²
Våning: 2
Hiss: Nej
Balkong: Nej
Tvättmaskin: Nej
Förråd: Ja
Fastighet: Hertsön 11:665
Objektsnummer: 1013100-1201

Vill du veta mer om våra riktlinjer? Läs vår uthyrningspolicy.

Faciliteter

  • Tomtskötsel
  • Hushållsel ingår inte i hyran
  • Förråd i anslutning till lägenheten
  • Samlingslokal i gemensamhetsutrymme

Planlösning

För att se kartan måste du acceptera cookies för Google Maps.
Vänligen ladda om sidan efter att du har ändrat dina cookie-inställningar.


I närheten

Visas nu
Visas nu
Visas nu