Linköping - Lambohov

Tröskaregatan 12.313

Tillbaka till sök
Trevlig 2 rok med fransk balkong och inkluderat bredband

 


Välkommen till en ljus och välplanerad lägenhet med två rum och kök – ett perfekt hem för dig som söker både komfort och funktion i vardagen.
Om bostaden
Här möts du av en inbjudande planlösning där varje kvadratmeter är genomtänkt. Köket erbjuder en naturlig matplats vid fönstret, idealisk för både vardagsmiddagar och trevliga kvällar med vänner. De rymliga rummen ger stor flexibilitet i möblering, och sovrummet rymmer enkelt en större säng samt erbjuder god förvaring i flera garderober. Det kaklade badrummet är fräscht och utrustat med dusch för en bekväm start på dagen. Lägenheten har dessutom en fransk balkong som bidrar med extra ljusinsläpp och rymd.
Funktioner och bekvämligheter



Fransk balkong som ger ett luftigt intryck


Rymligt sovrum med flera garderober


Kaklat badrum med dusch


Praktiskt kök med plats för matbord vid fönster


Tillgång till förråd för extra förvaring


Flera tvättstugor i fastigheten


Värme, vatten och bredband ingår (250 Mbit/s med trådlös router

Uthyrare

Ann-Sofie Eriksson

E-mail: ann-sofie.eriksson@heimstaden.com

7 146 kr/mån

Tillgänglig: 1 juli, 2026
Antal rum: 2 rum och kök
Storlek: 49m²
Våning: 2
Hiss: Nej
Balkong: Nej
Tvättmaskin: Nej
Fastighet: Importaffären 53
Byggnadsår: 2004
Objektsnummer: 1395101-1214

Vill du veta mer om våra riktlinjer? Läs vår uthyrningspolicy.

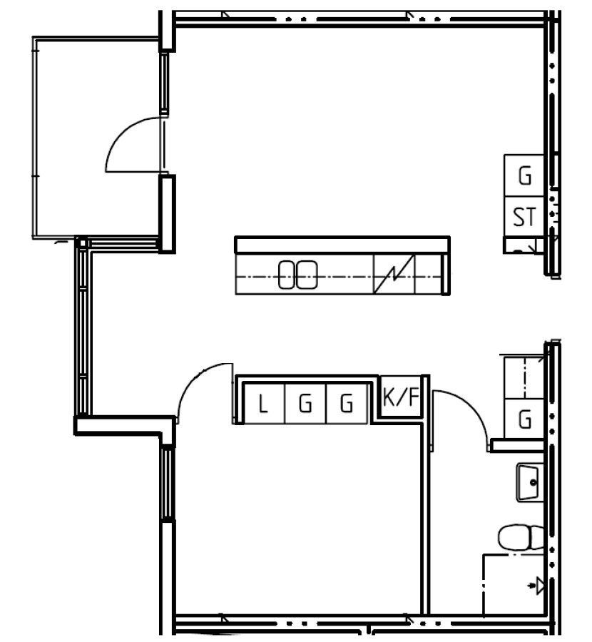
Planlösning

För att se kartan måste du acceptera cookies för Google Maps.
Vänligen ladda om sidan efter att du har ändrat dina cookie-inställningar.


I närheten

Visas nu
Visas nu
Visas nu