Linköping - Hejdegården

Heimdalsgatan 3B

Tillbaka till sök

Nyrenoverad 1 rok i Hejdegården – stilrent boende nära city och Stångån


Lägenheten kommer ej visas då den är under renovering.


Välkommen till en smakfullt totalrenoverad etta i eftertraktade Hejdegården – ett hem som kombinerar modern komfort med ett perfekt citynära läge.


Om bostaden
Här möts du av en ljus och välplanerad lägenhet.


Du blir första hyresgästen efter renoveringen, vilket ger en helt ny känsla i både kök och badrum. Det fina ljusinsläppet tillsammans med den smarta planlösningen skapar en trivsam och inbjudande atmosfär – perfekt för dig som vill bo modernt och bekvämt.


Funktioner



  • Totalrenoverad – helt i nyskick

  • Första hyresgästen efter renovering

  • Ljus och yteffektiv planlösning

  • Fräscht kök med diskmaskin

  • Badrum i Kalkel och klinker i ljust beiga toner.

  • Tvättmaskin kombinerad med torktumlare


Om området – Hejdegården, Linköping
Här bor du med det bästa av två världar – lugnt och grönt men med stadens puls runt hörnet. En kort promenad tar dig till centrala Linköping med shopping, restauranger och nöjen. Intill ligger Stångån med uppskattade promenad- och löpstråk, och den nya simhallen bidrar till ett aktivt och attraktivt närområde.


Hyresinformation
Hyran avser 2026 års nivå. Värme, vatten och grundutbud av TV-kanaler ingår.


VI reserverar oss för felskrivningar.


- Intresseanmälan -

Observera att intresseanmälan endast tas emot via vår hemsida, där du även hittar information om vår uthyrningspolicy.

Uthyrare

Ann-Sofie Eriksson

E-mail: ann-sofie.eriksson@heimstaden.com

7 722 kr/mån

Tillgänglig: 1 juli, 2026
Antal rum: 1 rum och kök
Storlek: 39m²
Våning: 2
Hiss: Nej
Balkong: Nej
Tvättmaskin: Kombimaskin
Diskmaskin: Ja
Fastighet: Seglaren 6
Byggnadsår: 1945
Objektsnummer: 1334110-1101

Vill du veta mer om våra riktlinjer? Läs vår uthyrningspolicy.

Faciliteter

  • Tvättstuga finns i fastigheten
  • Handdukstork, kostnad för uppvärmning ingår inte
  • Kombinerad tvätt/tork
  • Kombinerad kyl/frys
  • Spis med induktionshäll
  • Säkerhetsdörr
  • Duschvägg/ar
  • Diskmaskin finns

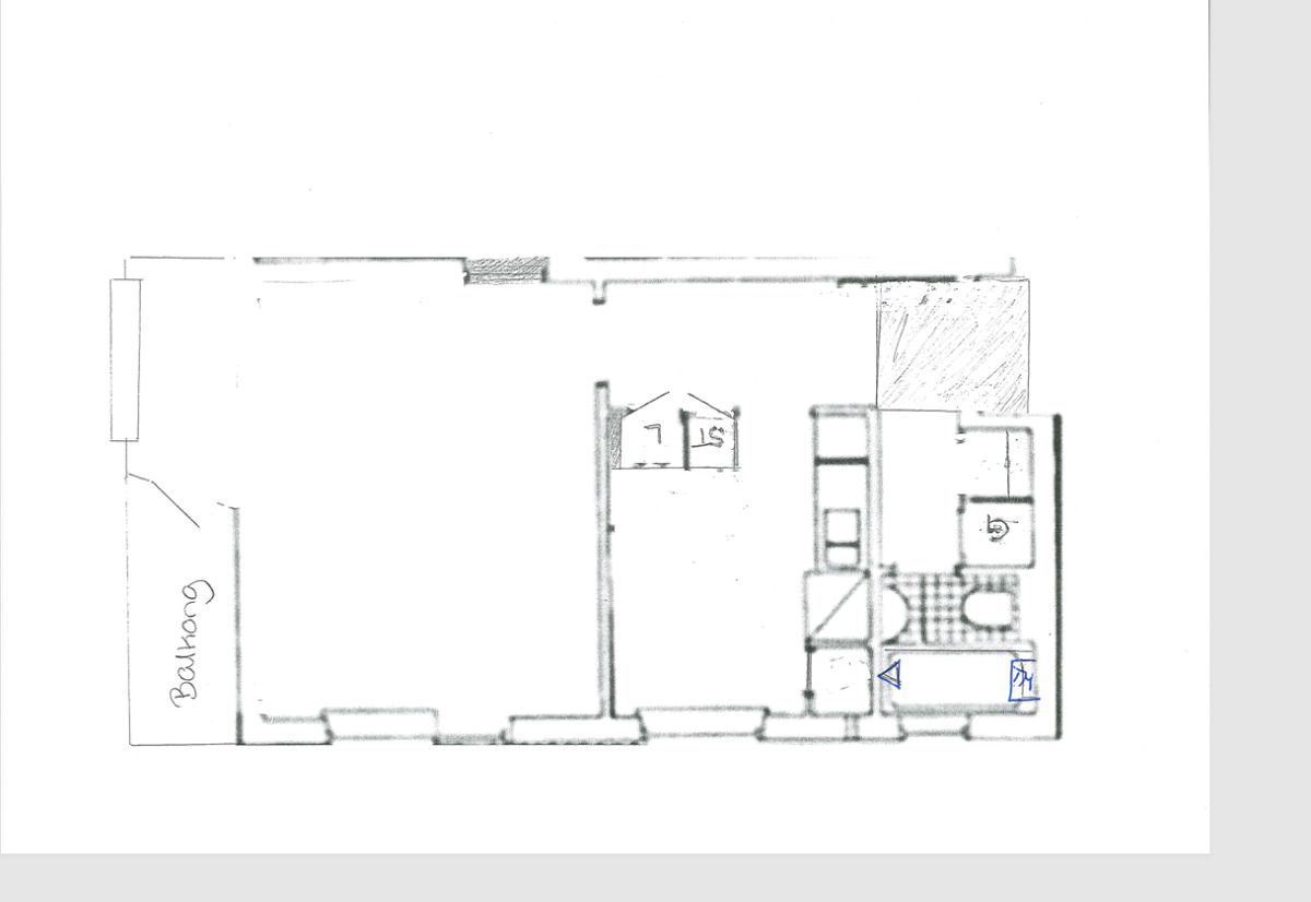
Planlösning

För att se kartan måste du acceptera cookies för Google Maps.
Vänligen ladda om sidan efter att du har ändrat dina cookie-inställningar.


I närheten

Visas nu
Visas nu
Visas nu