Katrineholm - Norr

Kyrkogatan 6

Tillbaka till sök

Rymlig 4 rok på Kyrkogatan 6 – centralt läge med generösa ytor


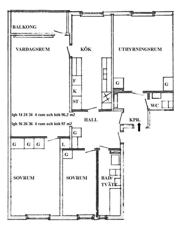
Välkommen till denna välplanerade fyrarumslägenhet om 97 kvm, belägen på andra våningen i en välskött fastighet. Här erbjuds ett bekvämt och rymligt boende med närhet till stadens utbud.


Om bostaden
Lägenheten har en generös planlösning som ger gott om utrymme för både vardagsliv och sociala tillfällen. De stora rummen skapar en luftig känsla och erbjuder flexibilitet för familj, arbete eller hobby. Här finns flera sovrum, ett rymligt vardagsrum samt ett funktionellt kök - perfekt för dig som söker både komfort och praktiska lösningar i hemmet.


Funktioner och bekvämligheter



  • 4 rum och kök om 97 kvm

  • Belägen på andra våningen våningen

  • Generösa sällskapsytor


Om området
Med adress på Kyrkogatan bor du centralt med närhet till allt du behöver i vardagen. Här finns butiker, restauranger, caféer och service inom bekvämt avstånd. Goda kommunikationer gör det enkelt att ta sig runt, vilket passar både pendlare och den som vill ha stadens puls runt hörnet. Området erbjuder en smidig och bekväm livsstil för såväl familjer som yrkesverksamma.


Välkommen att kontakta oss för mer information eller för att boka en visning av ditt nya hem. Du når Sofia på 070-5193626.

Sofia Ljungberg

Uthyrare

Sofia Ljungberg

E-mail: sofia.ljungberg@heimstaden.com

9 829 kr/mån

Tillgänglig: 1 juli, 2026
Antal rum: 4 rum och kök
Storlek: 97m²
Våning: 1
Hiss: Nej
Balkong: Ja
Tvättmaskin: Nej
Förråd: Ja
Fastighet: Aspen 12
Byggnadsår: 1967
Objektsnummer: 0301100-1101

Vill du veta mer om våra riktlinjer? Läs vår uthyrningspolicy.

Faciliteter

  • Badkar
  • Bredband tecknas av dig som kund
  • Hushållsel ingår inte i hyran
  • Tvättstuga finns i fastigheten
  • Balkong
  • Källarförråd

Planlösning

För att se kartan måste du acceptera cookies för Google Maps.
Vänligen ladda om sidan efter att du har ändrat dina cookie-inställningar.


I närheten

Visas nu
Visas nu
Visas nu