Katrineholm - Kamelen

Vasavägen 22 A

Tillbaka till sök

Rymlig 4:a med radhuskänsla och egen entré – uthyres på Vasavägen


Välkommen till denna trivsamma och välplanerade fyrarumslägenhet på Vasavägen 22 A i Katrineholm. Här får du det bästa av två världar – bekvämligheten av en lägenhet kombinerat med känslan av att bo i radhus, tack vare egen entré och privat postlåda.


Om bostaden
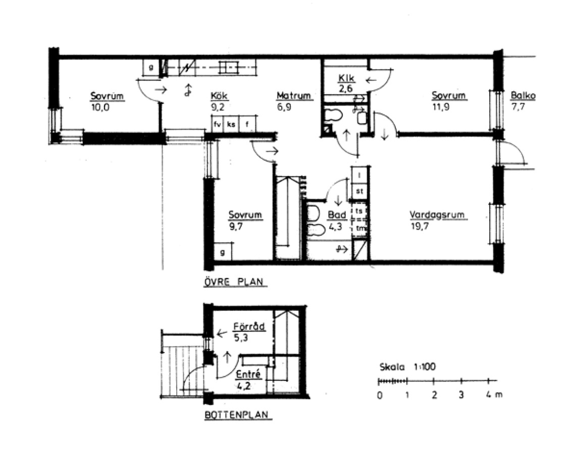
Bostaden är belägen en trappa upp och erbjuder generösa ytor samt en funktionell planlösning som passar både familjer och dig som önskar extra utrymme. Entréplanet välkomnar med en praktisk hall och tillhörande förråd som ger goda förvaringsmöjligheter. Köket är rymligt och har en separat matplats, perfekt för både vardag och sociala tillfällen. Här finns stor kyl och frys samt möjlighet att installera diskmaskin.


Vardagsrummet är luftigt och leder ut till en balkong med utsikt mot Vasavägen. Lägenheten rymmer flera sovrum, varav ett har en rymlig klädkammare. Det stilrent renoverade badrummet är utrustat med dusch och golvvärme för extra komfort. Möjlighet finns även att installera egen tvättmaskin och torktumlare.


Funktioner & bekvämligheter



  • Egen entré med radhuskänsla

  • Balkong från vardagsrum

  • Rymligt kök med separat matplats

  • Stor kyl och frys

  • Möjlighet till diskmaskin, tvättmaskin och torktumlare

  • Klädkammare i ett av sovrummen

  • Renoverat badrum med golvvärme

  • Förråd i anslutning till entrén

  • Fiberanslutning med nätverksuttag


I hyran ingår värme, kall- och varmvatten samt grundutbud av tv-kanaler via Tele2. Bredband tecknas separat via Telenor eller Tele2. Möjlighet finns att göra separat intresseanmälan för parkeringsplats eller garage.


Om området
Vasavägen erbjuder ett lugnt och trevligt bostadsområde i Katrineholm med närhet till både service och natur. Här bor du med smidig tillgång till centrum med butiker, restauranger och annan service, samtidigt som grönområden och promenadstråk finns inom bekvämt avstånd. Området passar särskilt bra för familjer och dig som söker ett tryggt och bekvämt boende med goda kommunikationer.


Intresserad?
Registrera din intresseanmälan direkt via hemsidan för att boka visning och ta nästa steg mot ditt nya hem.

Sofia Ljungberg

Uthyrare

Sofia Ljungberg

E-mail: sofia.ljungberg@heimstaden.com

11 354 kr/mån

Tillgänglig: 1 juli, 2026
Antal rum: 4 rum och kök
Storlek: 93m²
Våning: 2
Hiss: Nej
Balkong: Ja
Tvättmaskin: Nej
Förråd: Ja
Fastighet: Kamelen 8
Byggnadsår: 1984
Objektsnummer: 0212201-1001

Vill du veta mer om våra riktlinjer? Läs vår uthyrningspolicy.

Faciliteter

  • Bredband tecknas av dig som kund
  • Golvvärme Badrum, kostnad för uppvärmning ingår ej
  • Hushållsel ingår inte i hyran
  • Tvättstuga finns i angränsande fastighet
  • Dubbel kyl/frys
  • Balkong
  • Förråd i lägenheten
  • Dusch med draperistång
  • Cykelställ på gården

Planlösning

För att se kartan måste du acceptera cookies för Google Maps.
Vänligen ladda om sidan efter att du har ändrat dina cookie-inställningar.


I närheten

Visas nu
Visas nu
Visas nu