Katrineholm - Öster

Jungfrugatan 1 B

Tillbaka till sök

Prisvärd lägenhet med söderbalkong och generös hyresrabatt – nära centrum


Ta chansen att hyra denna välplanerade bostad med balkong i soligt söderläge och få 1 000 kr i rabatt varje månad i hela tre år. Den angivna hyran är redan rabatterad.


Här erbjuds ett trivsamt och funktionellt boende på tredje våningen, med en lugn placering mot gården och ett härligt ljusinsläpp.


Om bostaden
Lägenheten har en smart planlösning som skapar en luftig och bekväm boendemiljö. Balkongen i söderläge vetter mot gården och blir en perfekt plats för avkoppling under årets varmare månader. Köket är utrustat med moderna vitvaror, inklusive spis med varmluftsugn och keramisk häll. Kyl och frys byttes ut så sent som 2024, vilket bidrar till en uppdaterad standard. För extra bekvämlighet ingår även tvättmaskin i bostaden.


Bekvämligheter och utrustning



  • Balkong i söderläge mot gård

  • Spis med varmluftsugn och keramisk häll

  • Ny kyl/frys (2024)

  • Tvättmaskin i lägenheten

  • Fiberanslutning med nätverksuttag

  • TV (grundutbud via Tele2) ingår

  • Värme samt kall- och varmvatten ingår

  • Möjlighet att teckna bredband via Telenor eller Tele2

  • Parkeringsplats och garage finns att söka separat


Om området
Här bor du med ett bekvämt läge med gångavstånd till både centrum och resecentrum, vilket gör vardagen smidig – särskilt för dig som pendlar. I närheten finns även Kullbergska sjukhuset samt Sveaparken som erbjuder fina grönområden för promenader och rekreation. För vardagens bekvämligheter finns även restauranger och service runt hörnet, däribland en populär pizzeria.


Intresserad?
Registrera dig via hemsidan och skicka in din intresseanmälan redan idag. Vid frågor är du varmt välkommen att kontakta Edwin på 072-162 08 83.

Edwin Åbrink

Uthyrare

Edwin Åbrink

E-mail: edwin.abrink@heimstaden.com

7 224 kr/mån

Tillgänglig: Nu / enligt överenskommelse
Antal rum: 3 rum och kök
Storlek: 73m²
Våning: 3
Hiss: Nej
Balkong: Ja
Tvättmaskin: Tillval
Förråd: Ja
Fastighet: Blåsippan 8
Byggnadsår: 1965
Objektsnummer: 0233102-1201

Vill du veta mer om våra riktlinjer? Läs vår uthyrningspolicy.

Faciliteter

  • Bredband tecknas av dig som kund
  • Hushållsel ingår inte i hyran
  • Tvättstuga finns i fastigheten
  • Balkong
  • Varmluftsugn finns
  • Vindsförråd
  • Källarförråd
  • Spis med häll
  • Duschvägg/ar
  • Tvättmaskin, tillval
  • Cykelställ på gården

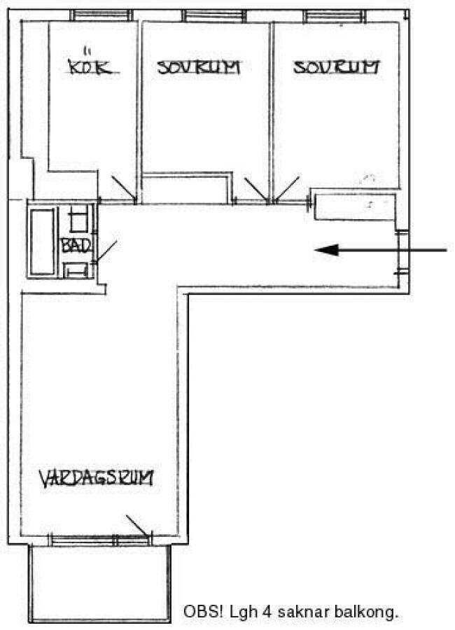
Planlösning

För att se kartan måste du acceptera cookies för Google Maps.
Vänligen ladda om sidan efter att du har ändrat dina cookie-inställningar.


I närheten

Visas nu
Visas nu
Visas nu