Katrineholm - Kamelen

Hantverkaregatan 17

Tillbaka till sök







Ljus och nyrenoverad 1 rok i centrum med balkong – uthyres


Välkommen till en stilren och välplanerad 1 rum och kök mitt i centrum – perfekt för dig som söker ett modernt och bekvämt boende med närhet till allt.


Om bostaden
Denna nyrenoverade lägenhet erbjuder en fräsch och inbjudande miljö med genomgående ljusa ytskikt och vacker ekparkett i kök, vardagsrum och sovdel. Hallen har ett elegant klinkergolv som både är praktiskt och ger ett snyggt första intryck. Planlösningen är smart utformad för att maximera både ljusinsläpp och funktionalitet.


Kök och badrum
Köket är modernt utrustat med kombinerad kyl och frys, spis med keramikhäll samt varmluftsugn – perfekt för både vardagsmatlagning och middagar med vänner.
Det helkaklade badrummet håller hög standard och är utrustat med dusch, tvättmaskin och handdukstork för extra komfort i vardagen.


Balkong
Den rymliga balkongen blir en naturlig förlängning av bostaden – en perfekt plats för morgonkaffet eller avkoppling efter en lång dag.


Fastighet och bekvämligheter
I hyran ingår värme, kall- och varmvatten samt ett grundutbud av TV-kanaler via Tele2. Fastigheten är ansluten till fiber och erbjuder smidig uppkoppling via Telenor eller Tele2. Parkeringsplats och garage finns att ansöka om separat.


Läge
Här bor du centralt med bekvämt gångavstånd till service, mataffär och centrumutbud. Närheten till servicehuset Igelkotten bidrar till ett lugnt och välordnat närområde. Området passar utmärkt för både studenter och yrkesverksamma som vill ha nära till stadens puls samtidigt som man bor i en trivsam miljö.


Hyresinformation



  • Värme, vatten och TV-grundutbud ingår i hyran

  • Fiberanslutning finns (eget abonnemang tecknas)

  • Parkeringsplats/garage via separat intresseanmälan


Låter detta som ditt nästa hem? Skicka in din intresseanmälan redan idag och ta chansen att flytta in i en modern och centralt belägen lägenhet.


Sofia Ljungberg

Uthyrare

Sofia Ljungberg

E-mail: sofia.ljungberg@heimstaden.com

7 722 kr/mån

Tillgänglig: 1 juli, 2026
Antal rum: 1 rum och kök
Storlek: 53m²
Våning: 3
Hiss: Ja
Balkong: Ja
Tvättmaskin: Nej
Förråd: Ja
Fastighet: Kamelen 8
Byggnadsår: 1983
Objektsnummer: 0212120-1202

Vill du veta mer om våra riktlinjer? Läs vår uthyrningspolicy.

Faciliteter

  • Hiss i fastigheten
  • Bredband tecknas av dig som kund
  • Hushållsel ingår inte i hyran
  • Tvättstuga finns i fastigheten
  • Balkong
  • Källarförråd

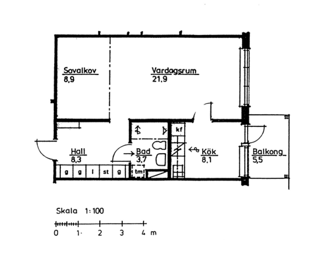
Planlösning

För att se kartan måste du acceptera cookies för Google Maps.
Vänligen ladda om sidan efter att du har ändrat dina cookie-inställningar.


I närheten

Visas nu
Visas nu
Visas nu