Ungdomslägenhet i Visättra Ängar – uthyrning nära Flemingsbergsskogen
Nu har du möjlighet att hyra en ungdomslägenhet med naturen precis utanför dörren. Ett bekvämt och välplanerat boende från 2016, skapat för att göra det lättare för unga vuxna att ta sig in på bostadsmarknaden.
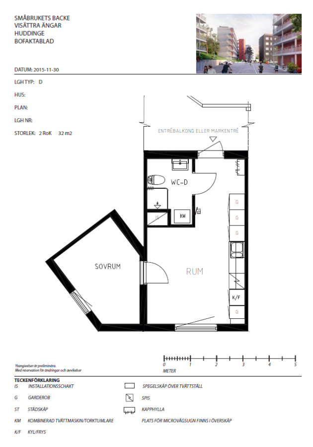
Lägenheten
En smart planerad bostad med funktionell köksutrustning, stort badrum och moderna bekvämligheter:
- Byggår 2016
- Angiven hyra i annonsen avser 2026-års hyra.
- Kök med kombinerad kyl och frys
- Stort badrum med kombinerad tvättmaskin/torktumlare
- Fiber 250/250 Mbit/s via Halebop ingår
- Telia Play inkluderat
- Värme, varm- och kallvatten ingår
- Parkeringsplatser att hyra (se lediga platser på vår hemsida)
Hushållselen betalar du för själv.
Observera att bilderna är från en annan likvärdig lägenhet. Lägenheten visas inte vilket betyder att du behöver ta ställning till lägenheten utifrån information i annonsen, planritning och bifogade exempelbilder.
Läget – Visättra Ängar och Flemingsberg
Lägenheten ligger i naturnära Visättra Ängar, precis intill det stora naturreservatet Flemingsbergsskogen med motionsspår, promenadstigar och grönområden.
Här bor du på bekvämt gångavstånd till Flemingsbergs centrum med butiker och service samt nära Karolinska Universitetssjukhuset, Södertörns högskola och KTH Flemingsberg.
Området passar utmärkt för studenter, unga yrkesverksamma och dig som vill kombinera ett lugnt läge med närhet till campus och goda kommunikationer.
Villkor för att hyra
- Ålder 18–25 år
- Inkomst minst två gånger hyran
- Maximal boendetid är fyra år (du fortsätter samla registreringstid under hela perioden)
Intresseanmälan
Välkommen med din intresseanmälan!
7 132 kr/mån
| Tillgänglig: | 1 juli, 2026 |
|---|---|
| Antal rum: | 2 rum och kokvrå |
| Storlek: | 32m² |
| Våning: | 0 |
| Hiss: | Ja |
| Balkong: | Nej |
| Tvättmaskin: | Kombimaskin |
|---|---|
| Miljöcertifierad: | Ja |
| Fastighet: | Brygghuset 2 |
| Byggnadsår: | 2016 |
| Objektsnummer: | 1168160-1001 |
Vill du veta mer om våra riktlinjer? Läs vår uthyrningspolicy.
Faciliteter
- Bottenvåning/markplan
- Hushållsel ingår inte i hyran
- Kombinerad tvätt/tork
- Miljöbyggnad Silver
- Kombinerad kyl/frys
- Säkerhetsdörr
- Dusch med draperistång
Planlösning