Rabatterad hyra i ett år - 2 rok på Spannmålsgatan 3
Just nu erbjuder vi en generös hyresrabatt för dig som ny hyresgäst! Den angivna hyran är redan sänkt med 1523 kr per månad, vilket ger dig en lägre boendekostnad under hela det första året. Observera att hyran som visas redan inkluderar rabatten och att inget ytterligare avdrag görs.
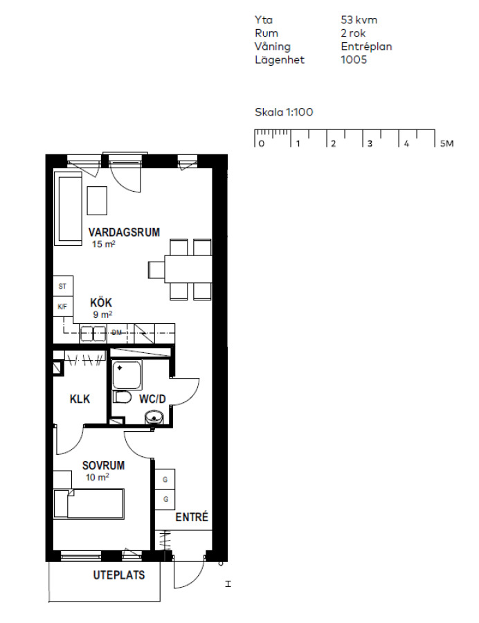
Om bostaden
Bostaden erbjuder en genomtänkt planlösning med fokus på både funktion och sociala ytor. Den öppna planlösningen mellan kök och vardagsrum skapar ett luftigt och inbjudande hem där det är enkelt att umgås.
Här möts du av ekparkett och ljusa väggar som ger en modern och harmonisk känsla. Köket är stilrent utformat med vita skåpluckor, grå laminatbänkskiva och utrustat med diskmaskin för extra bekvämlighet. Det helkaklade badrummet har klinkergolv och en fräsch, tidlös design. Sovrummet är placerat mot den lugna innergården, vilket bidrar till en rofylld atmosfär. Från bostaden finns även tillgång till en egen uteplats.
Drift & bekvämligheter
- Kabel-tv ingår
- Fiberanslutning finns
- Värme och vatten ingår i hyran
- Garage finns under fastigheten och kan hyras för 918 kr per månad
- Cykelförråd finns
- Tvättstuga belägen i källaren
Om området – Mariastaden
Mariastaden är ett populärt och lugnt bostadsområde med trivsam småstadskänsla. Här bor du med närhet till mataffärer, caféer, gym, vårdcentral och grönområden. Goda bussförbindelser tar dig smidigt till Helsingborgs centrum, Campus och Knutpunkten, och för bilpendlaren är påfart till E4 och E6 lättillgänglig.
Observera att bilderna är referensbilder från en liknande lägenhet och kan avvika från den aktuella bostaden. Vi reserverar oss för eventuella felskrivningar.
Intresseanmälan & visning
Låter detta som ditt nästa hem? Välkommen att göra en intresseanmälan eller skicka ett mejl till ansvarig uthyrare i Helsingborg.
7 593 kr/mån
| Tillgänglig: | 1 juli, 2026 |
|---|---|
| Antal rum: | 2 rum och kök |
| Storlek: | 53m² |
| Våning: | 0 |
| Hiss: | Ja |
| Balkong: | Nej |
| Tvättmaskin: | Nej |
|---|---|
| Diskmaskin: | Ja |
| Förråd: | Ja |
| Miljöcertifierad: | Ja |
| Fastighet: | Slagan 1 |
| Objektsnummer: | 1285100-1015 |
Vill du veta mer om våra riktlinjer? Läs vår uthyrningspolicy.
Faciliteter
- Hiss i fastigheten
- Tele 2 grundutbud ingår i hyran
- Fiberanslutning finns
- Bottenvåning/markplan
- Tvättstuga finns i fastigheten
- Porttelefon
- Miljöbyggnad Silver
- Fastigheten har digitala postboxar
- Källarförråd
- Säkerhetsdörr
- Diskmaskin finns
Planlösning