Eskilstuna - Norr

Knut Hellbergsgatan 13

Tillbaka till sök

Renoverad trea med två uteplatser på Norra Munktellstaden


Välkommen till ett renoverat och mycket välplanerat hem om tre rum och kök, beläget på bottenvåningen på attraktiva Knut Hellbergsgatan 13. Här erbjuds ett modernt boende med generöst ljusinsläpp, smart planlösning och extra mervärde i form av två uteplatser.


Om bostaden
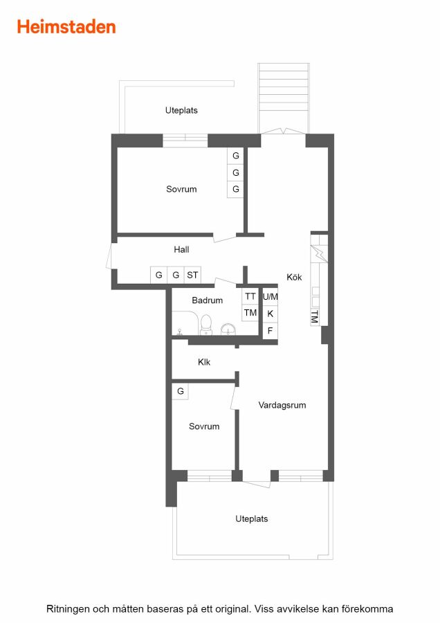
Lägenheten har en genomtänkt disposition med två sovrum, ett rymligt vardagsrum och ett funktionellt kök i modern stil. Köket är utrustat med diskmaskin och bra arbetsytor, vilket gör det både praktiskt och inbjudande. Det helkaklade badrummet är fräscht och modernt med tvättmaskin och torktumlare som underlättar vardagen. Förvaringsmöjligheterna är goda tack vare garderober samt en separat klädkammare. Genomgående ljusa ytskikt bidrar till en trivsam och luftig känsla i hela bostaden.


De två uteplatserna ger fina möjligheter att njuta av utomhusmiljö från olika delar av lägenheten, perfekt för både morgonkaffet och avkoppling under dagen.


Område & närmiljö
Norra Munktellstaden är en av Eskilstunas mest eftertraktade stadsdelar, där modern arkitektur samsas med områdets industrihistoriska arv. Här bor du med promenadavstånd till Eskilstunas stadskärna med shopping, restauranger, caféer, gym och service. I närområdet finns även Munktellbadet, grönområden, promenadstråk längs ån och goda kommunikationer, vilket gör området attraktivt för både par och familjer som söker ett bekvämt och centralt boende.


Låter detta som ett hem för dig är du varmt välkommen att skicka in en intresseanmälan via hemsidan.


Observera att hyran är avsedd för 2025 års-nivå. Hyresförhandlingar för 2026 pågår. 

Uthyrare

Anders Dahlström

E-mail: anders.dahlstrom@heimstaden.com

8 993 kr/mån

Tillgänglig: 1 maj, 2026
Antal rum: 3 rum och kök
Storlek: 73m²
Våning: 0
Hiss: Ja
Balkong: Terass/altan
Tvättmaskin: Ja
Diskmaskin: Ja
Fastighet: Namnsdagen 1
Byggnadsår: 2018
Objektsnummer: 1357103-1001

Vill du veta mer om våra riktlinjer? Läs vår uthyrningspolicy.

Faciliteter

  • Hiss i fastigheten
  • Tvättmaskin
  • Lägenheten är utrustad med tvättmaskin och torktumlare
  • IMD - Individuellmätning & debitering Individuellmätning El, Kall- & Varmvatten
  • Balkong av typen: Terass/altan
  • Mikrovågsugn
  • Diskmaskin finns

Planlösning

För att se kartan måste du acceptera cookies för Google Maps.
Vänligen ladda om sidan efter att du har ändrat dina cookie-inställningar.


I närheten

Visas nu
Visas nu
Visas nu