Burlöv - Arlöv

Dalbyvägen 38

Tillbaka till sök

Modern och välplanerad 2:a till hyra på Dalbyvägen 38 – Balkong och bekvämt boende i lugnt område


Välkommen till denna trivsamma och smart planerade tvårumslägenhet på Dalbyvägen 38. Här bor du i ett lugnt och omtyckt område med fint ljusinsläpp, stilrena materialval och bekvämligheter som förenklar vardagen.


Om lägenheten


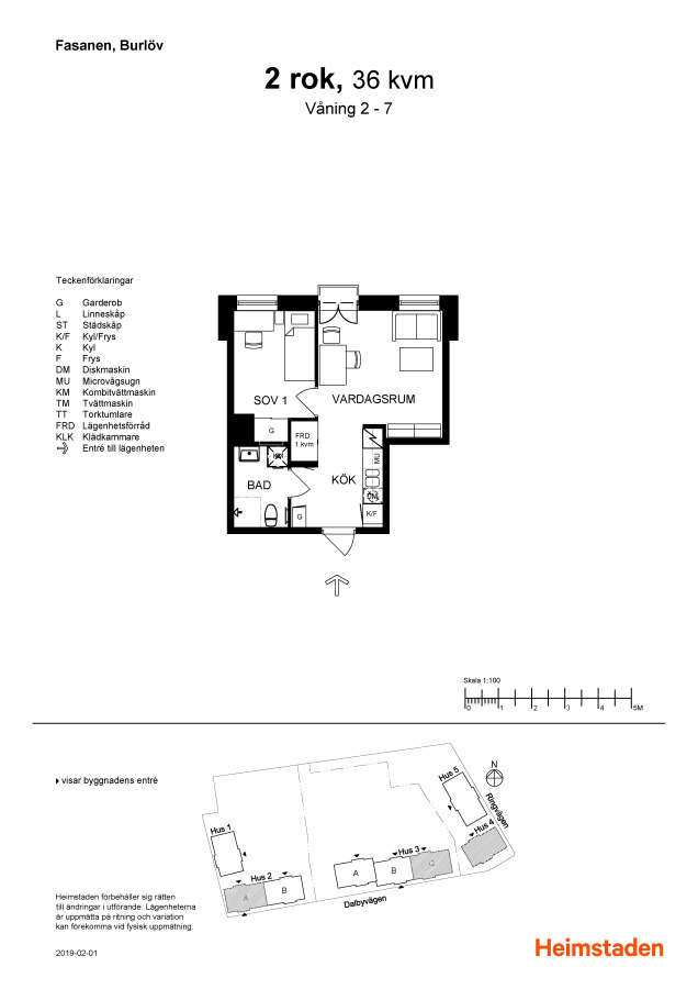
Bostaden erbjuder en öppen och social planlösning mellan kök och vardagsrum som skapar en luftig och inbjudande känsla – perfekt för både avkoppling och umgänge. De vitmålade väggarna i kombination med ekparkett ger ett modernt och enhetligt intryck som är lätt att inreda efter egen smak.


Det moderna köket är fullt utrustat med kyl och frys, induktionshäll med ugn, diskmaskin samt mikrovågsugn. Här finns allt du behöver för en smidig vardag och trevliga middagar med vänner.


Sovrummet är rofyllt och välplanerat med plats för säng och förvaring.


Det helkaklade badrummet är stilrent och utrustat med dusch samt en praktisk kombimaskin för tvätt och tork – en yteffektiv lösning som gör vardagen enklare.


Lägenheten har även en mindre balkong som vetter mot gården. Balkongen är begränsad i storlek och lämpar sig främst för vädring eller växter snarare än sittmöbler.


Observera att bilderna är referensbilder.


Fastigheten och bekvämligheter



  • Värme samt kall- och varmvatten ingår i hyran

  • Telias basutbud av tv-kanaler ingår

  • Öppen fiber finns, abonnemang tecknas separat

  • Elförbrukning för ventilation via köksfläkten belastar eget el-abonnemang

  • Parkeringsplats kan hyras, för närvarande mindre kö

  • Möjlighet till hyrbil via Our Green Car med elbil placerad i området

  • Cykelparkering i separat cykelrum på gården


Om området – Dalbyvägen


Dalbyvägen erbjuder ett lugnt och trivsamt bostadsläge med närhet till grönområden och god service. I närområdet finns matbutiker, service och bekvämligheter som gör vardagen enkel. Goda kommunikationer tar dig smidigt vidare till stadskärnan och övriga delar av staden, vilket gör läget idealiskt för såväl studenter och pendlare som yrkesverksamma som söker ett bekvämt och lättskött boende.


Här bor du med närhet till både stadens utbud och grönskande omgivningar – en attraktiv kombination för dig som vill ha balans mellan lugn och tillgänglighet.


Välkommen att skicka in din intresseanmälan och upptäck ditt nya hem på Dalbyvägen 38.

Uthyrare

Caroline Berg

E-mail: caroline.berg@heimstaden.com

7 217 kr/mån

Tillgänglig: 1 juli, 2026
Antal rum: 2 rum och kök
Storlek: 36m²
Våning: 4
Hiss: Ja
Balkong: Ja
Tvättmaskin: Kombimaskin
Diskmaskin: Ja
Förråd: Ja
Miljöcertifierad: Ja
Fastighet: Burlöv Arlöv 20:58
Byggnadsår: 2020
Objektsnummer: 1214100-1303

Vill du veta mer om våra riktlinjer? Läs vår uthyrningspolicy.

Faciliteter

  • Hiss i fastigheten
  • Fiberanslutning finns
  • Hushållsel ingår inte i hyran
  • Kombinerad tvätt/tork
  • Miljöbyggnad Silver
  • Kombinerad kyl/frys
  • Fastigheten har digitala postboxar
  • Spisfläkt
  • Balkong
  • Inbyggnadsugn
  • Förråd i lägenheten
  • Säkerhetsdörr
  • Mikrovågsugn
  • Duschvägg/ar
  • Diskmaskin finns
  • Cykelförrråd i låst utrymme på gården

Planlösning

För att se kartan måste du acceptera cookies för Google Maps.
Vänligen ladda om sidan efter att du har ändrat dina cookie-inställningar.


I närheten

Visas nu
Visas nu
Visas nu