Etta på Dalbyvägen 34 A – Modernt och bekvämt boende nära allt du behöver
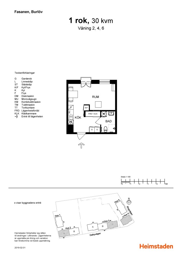
Välkommen till denna ljusa och välplanerade enrummare med generöst ljusinsläpp, belägen i ett trivsamt område med närhet till både service och kommunikationer. Lägenheten erbjuder en öppen och social planlösning där vitmålade väggar och ekparkett skapar en modern och inbjudande atmosfär.
Köket är fullt utrustat med kyl/frys, induktionshäll med ugn, diskmaskin samt mikrovågsugn – perfekt för den som vill ha en smidig vardag. Det helkaklade badrummet är utrustat med dusch, tvättmaskin och torktumlare. Här finns också en mindre balkong med utsikt mot gården.
Läget i Arlöv är särskilt praktiskt för dig som pendlar, med enkel anslutning till både E6 och E22. Tågstation och busshållplatser nås på bara några minuters promenad, och för shopping och service ligger Burlöv Center nära till hands. Samtidigt finns grönområden och fina promenadstråk runt hörnet.
Observera att bilderna i annonsen är exempelbilder från en liknande bostad, men de ger en tydlig bild av standard och planlösning.
Övrigt
Hyran avser 2025 års hyresnivå. I hyran ingår värme, kall/varmvatten samt basutbudet av Telias tv-kanaler. Elförbrukningen för lägenhetens ventilation via köksfläkten belastar elabonnemanget. Internet är öppen fiberuppkoppling – abonnemang tecknas separat med utvalda leverantörer. Parkeringsplats går att hyra för 276 kr i månaden, just nu med mindre kö. Det finns möjlighet till hyrbil genom Our Green Car som har en elbil på plats i området. Cykelparkering finns i separat cykelrum på gården.
Alla intresseanmälningar på våra lediga lägenheter görs via hemsidan. För mer information om vår uthyrningspolicy, besök:
heimstaden.com/uthyrningspolicy
Vi reserverar oss för eventuella felskrivningar.
6 171 kr/mån
Tillgänglig: | 1 januari, 2026 |
---|---|
Antal rum: | 1 rum och kök |
Storlek: | 30m² |
Våning: | 3 |
Hiss: | Ja |
Balkong: | Ja |
Tvättmaskin: | Kombimaskin |
Diskmaskin: | Ja |
---|---|
Förråd: | Ja |
Miljöcertifierad: | Ja |
Fastighet: | Burlöv Arlöv 20:58 |
Byggnadsår: | 2019 |
Objektsnummer: | 1215111-1304 |
Vill du veta mer om våra riktlinjer? Läs vår uthyrningspolicy.
Faciliteter
- Hiss i fastigheten
- Bredband tecknas av dig som kund
- Hushållsel ingår inte i hyran
- Handdukstork, kostnad för uppvärmning ingår inte
- Kombinerad tvätt/tork
- Miljöbyggnad Silver
- Kombinerad kyl/frys
- Fastigheten har digitala postboxar
- Spisfläkt
- Balkong
- Förråd i lägenheten
- Säkerhetsdörr
- Mikrovågsugn
- Duschvägg/ar
- Diskmaskin finns
- Cykelförrråd i låst utrymme på gården
Planlösning
