1-roms med balkong i rolig område med sovealkove | Ledig nå
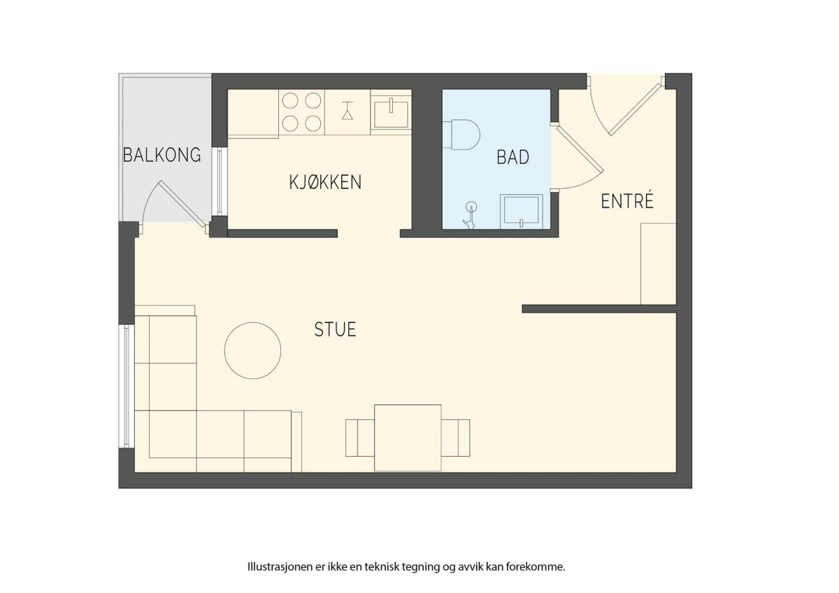
1-roms leilighet beliggende i et sentralt og hyggelig område, med store grøntarealer. Leiligheten har en smart planløsning med stue med utgang til balkong, separat kjøkkenløsning og bad. Et populært område med nærhet til både byen og marka.
Vi ønsker deg velkommen til en hyggelig visning!
Eiendommens rom:
Indre rom:
Entré, stue med utgang til balkong, separat kjøkkenløsning, bad.
Ytre rom:
Bod, tilgang til fellesvaskeri, mulighet for leie av parkeringsplass.
Standard:
Kjøkken: Kjøkken med god lagringsplass.
Gulv: Parkett
Bad: Flislagt gulv, vegger med malte flater
Inventar:
Boligen leies ut umøblert.
Fasiliteter:
Boligen har opplegg for kabel-tv og bredbånd.
Kostnader ved leie av bolig
I tillegg til husleie betales a konto kr 900 pr måned for leilighetens andel av utgifter til fyring/oppvarming og varmt vann. A konto-betalingene avregnes en gang i året og ved leieforholdets opphør. Utgiftene fordeles forholdsmessig mellom leilighetene etter areal.
Leietager tegner eget strømabonnement og egen innboforsikring.
Følgende fordeler får du ved å leie hos Heimstaden:
- Bredbåndstilknytning fra 100 Mbps
- Egen kundeservice for rask behandling av henvendelser
- Heimservice - 2 timer med hjelp i leiligheten etter at du har flyttet inn
- Trappevask er inkludert
- Vaktmestertjeneste utført av egne ansatte er inkludert
- Egen bemannet vakttelefon som er tilgjengelig ved akutte situasjoner utenom våre åpningstider
- Mulighet for lån av verktøykasse under hele leieforholdet
- Vi eier leilighetene selv og er ingen mellommann
- Profesjonell aktør/eier
Eiendommen:
Gård med 53 leiligheter fordelt på på 4 etasjer + loft og kjeller. Alle leilighetene har balkong og tilgang til fellesvaskeri i kjeller. Fasaden på bygget er saltak tekket med takstein, og resten mur. Mulighet for biloppstilingsplass.
Beliggenhet:
Nedre Ullevål er et attraktivt og etablert boligområde omgitt av grønne omgivelser. Her bor du rolig og tilbaketrukket, samtidig som du har kort vei til alt Oslo sentrum har å by på. Et perfekt valg for deg som ønsker en sentral beliggenhet med nærhet til rekreasjonsområder og gode kollektivforbindelser.
Bislett og Thereses gate ligger rett i nærheten og byr på et bredt utvalg av butikker, kaféer, restauranter og servicetilbud. Det er gangavstand til både St. Hanshaugen, Ullevål Stadion og Majorstuen, med Bogstadveien som et naturlig midtpunkt for shopping og uteliv.
I nærområdet finnes flere parker og grøntområder som Stensparken, Frognerparken og St. Hanshaugen park. For den aktive er det gode treningsmuligheter hos SATS Bislett, Fresh Fitness, fitness.xpress og Bislet bad, i tillegg til Bislett stadion. På sommeren kan man bade på Frognerbadet eller spille tennis på Frogner tennis, mens Frogner Stadion tilbyr skøytebane på vinterstid.
Området har nærhet til Universitetet i Oslo (Blindern), Det odontologiske fakultet (tannlegeutdanningen), OsloMet og BI i Nydalen – med gode kollektivforbindelser til alle studiestedene. Det tidligere området til Veterinærhøgskolen er under utvikling og rommer nå blant annet Oslo Nye Høyskole og næringsvirksomhet.
Ullevål sykehus ligger like ved, og mange av våre beboere jobber der.
Adkomst:
Det er svært gode kollektivmuligheter i umiddelbar nærhet. Trikkelinjene 17 og 18 stopper like ved og tar deg raskt til sentrum, Bislett, Solli plass og Aker Brygge.
Kun noen minutters gange til bussforbindelser som linje 20, 22, 25 og 28, samt Flybussen. Bussene gir effektiv adkomst til blant annet Majorstuen, Nydalen, Oslo S, Sagene og andre sentrale områder i byen.
Parkering
Det er mulighet for leie av biloppstillingsplass. Kontakt Aimo Park for nærmere informasjon om pris og vilkår. For mer informasjon om parkeringsanlegget, se www.aimopark.no. For øvrig gateparkering iht. områdets bestemmelser.
Utleiers krav til sikkerhet:
Som sikkerhet i dette leieforholdet kan leietaker velge å innbetale et depositum tilsvarende 3 måneders husleie til Danske Bank, eller kjøpe en leiegaranti tilsvarende 4 måneders husleie fra Keyhole. Leiegaranti fra Keyhole betales med månedsabonnement, f.eks vil et depositum på kr 48 000 koste fra kr 173 per måned. Mer informasjon om produktet og beregnet pris for din leiegaranti ser du på: no.usekeyhole.com/heimstaden
Fordeler med leiegaranti:
- Du slipper å binde opp penger i et depositum
- Du betaler i stedet et fast lavt månedsbeløp for mer økonomisk fleksibilitet
- Det er enkelt å opprette en leiegaranti
- Tilfredsstiller utleiers krav til sikkerhet
- Du får raskt svar på om leiegaranti er godkjent som sikkerhet for ditt leieforhold
Ta kontakt med ansvarlig utleier for å finne ut om du tilfredsstiller vilkårene for kjøp av leiegaranti: Du må være privatperson med norsk personnummer eller d-nummer. Videre må du kunne dokumentere din inntekt, og være uten betalingsanmerkninger.
Første måneds husleie innbetales senest 14 dager før overtagelse, sammen med enten depositum eller første månedsbeløp for leiegaranti.
Minste leietid:
Leiekontrakten har minste leietid på 12 måneder. Leietaker kan ikke si opp kontrakten slik at den opphører i desember.
Generell info:
Er du interessert i denne leiligheten, oppfordrer vi deg til å sende oss din e-postadresse samt telefonnummer, slik at vi får fulgt deg opp på en god måte. Bildene kan være tatt på et tidspunkt hvor leiligheten har vært helt eller delvis møblert, og med møbler og utstyr som ikke følger med. Plantegning og bilder kan også være fra en tilsvarende leilighet i samme eiendom. Arealet er beregnet ut fra tegninger, og kan avvike noe fra virkeligheten. Det er derfor viktig at du besiktiger leiligheten.
Heimstaden:
Heimstaden er et av Europas ledende boligeiendomsselskap med rundt 159 000 utleieboliger i ni land. Vi kjøper, utvikler og forvalter boliger med et langsiktig perspektiv. Med bakgrunn i Heimstadens verdier; Care, Dare og Share, skaper våre 1900 kollegaer Friendly Homes – hjem med omtanke, for våre kunder og verdi for våre eiere.

15 300 kr/mån.
Tilgjengelig: | Nå |
---|---|
Antall rom: | 1 |
Størrelse: | 30kvm |
Etasje: | 0 |
Heis: | Nei |
---|---|
Balkong: | ja |
Eiendom: | Nedre Ullevål 1-5 |
Leilighetsnummer: | Ne1\48 |
3D visning
Fasiliteter
- Balkong/terrasse
Planløsning
