Gardermoen / GARDERMOEN

Tunvegen 08

Tilbake til søk

2-roms - Fullt møblert - ledig 01.02

Moderne, fullt møblert 1-roms leilighet med smarte løsninger for maksimal utnyttelse av plassen. Gården er totalrenovert i 2015, og holder en høy standard. Leiligheten inneholder stue, bad og kjøkken, som til sammen utgjør et flott oppholdsrom. Perfekt leilighet for en person.
Eiendommen ligger i umiddelbar tilknytning til Oslo Lufthavn Gardermoen, hvor det er bare noen minutters kjøretid fra leiligheten til terminalen.

Velkommen til visning

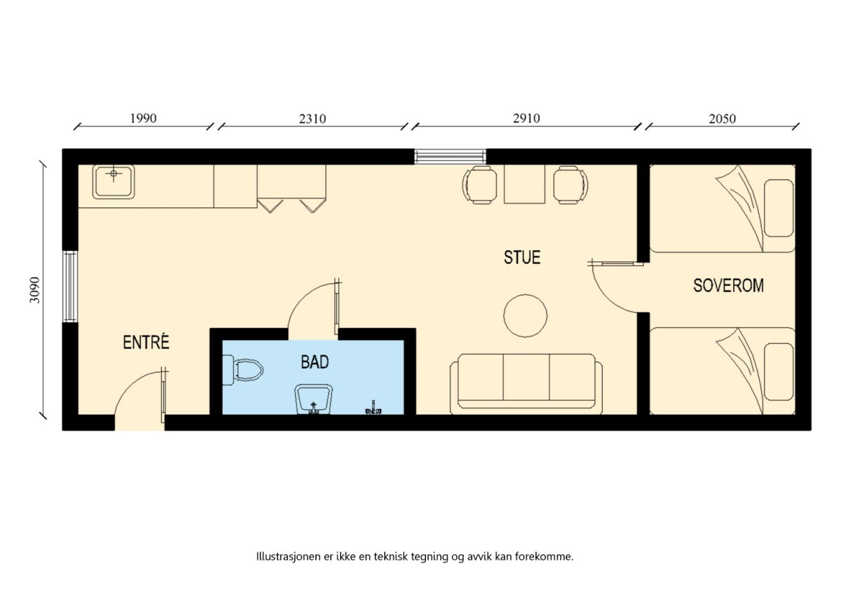
Eiendommens rom:
Indre rom:
Entré, stue med åpen kjøkkenløsning, soverom, bad

Ytre rom:
Fri bruk av fellesvaskeri, parkering

Inventar:
Boligen leies ut fullt møblert og utstyrt

Fasiliteter:
Boligen har bredbånd
Strøm/oppvarming er inkludert i leien

Annonsert pris gjelder leiekontrakt med normal oppsigelsestid. Pris på Kortere leieforhold (min. 1 mnd.) oppgis ved forespørsel

Kostnader ved leie av bolig
I tillegg til husleie betales a konto kr 1 000 pr måned for leilighetens andel av utgifter til fyring/oppvarming, varmt vann og strøm. Norgespris er inngått for a-konto avtale på eiendommen frem til 31.12.2026. Avtalen sikrer strøm til gunstige priser og bidrar til å redusere kostnadene. A konto-betalingene avregnes en gang i året og ved leieforholdets opphør. Utgiftene fordeles forholdsmessig mellom leilighetene etter areal.

Leietager må tegne egen innboforsikring.


Følgende fordeler får du ved å leie hos Heimstaden:

  • Bredbåndstilknytning på 20 Mbps
  • Egen kundeservice for rask behandling av henvendelser
  • Heimservice - 2 timer med hjelp i leiligheten etter at du har flyttet inn
  • Trappevask er inkludert
  • Vaktmestertjeneste utført av egne ansatte er inkludert
  • Egen bemannet vakttelefon som er tilgjengelig ved akutte situasjoner utenom våre åpningstider
  • Mulighet for lån av verktøykasse under hele leieforholdet
  • Vi eier leilighetene selv og er ingen mellommann
  • Profesjonell aktør/eier

Eiendommen:
9 gårder med 192 fullt møblerte leiligheter renovert i 2016, fordelt på 120 hybler, 36 1-roms og 36 2-roms leiligheter. Samtlige av våre leiligheter på Gardermoen er renovert i 2016. Leilighetene oppleves imøtekommende med moderne møbler, trådløst internett og gode senger.

Beliggenhet:
Eiendommen ligger landlig til, med umiddelbar tilknytning til Oslo Lufthavn Gardermoen. Få minutters kjøretid til terminalen. Oslo nåes med bil på en drøy halv time.

Kort vei til alle servicetilbud. Nærmest ligger Nannestad torg med kun 10 minutters avstand. Her finner du skoler, barnehager, offentlig kommunikasjon, rekreasjonsområder og servicetilbud.

Ikke langt unna ligger Jessheim. Jessheim sentrum har alt av fasiliteter, treningssenter, legesenter, kjøpesenter med ca 150 butikker, kulturhus og et bredt utvalg av restauranter og utesteder.

Nærmeste nabo er Clarion Hotel Oslo Airport. Her serverer de sunn og god frokost, lunsj og middag, og koselig stemning i baren.

Nordbytjernet er et flott friluftsområdene i Ullensaker. Nordbytjernet har badeplasser med strender, volleyballbaner, badebrygger og fiskebrygger.

2 minutter gangavstand til offentlig kommunikasjon i form av buss til Gardemoen, Nannestad og Jessheim. Fra Gardemoen er det gode togforbindelser inn til Oslo. Med flytoget kommer man inn til Oslo på kun 22. min.

Se film av eiendommen her: https://www.youtube.com/watch?v=8KHaqzbU8EM

Parkering
Det er mulighet for leie av biloppstillingsplass. Kontakt Aimo Park for nærmere informasjon om pris og vilkår. For mer informasjon om parkeringsanlegget, se www.aimopark.no. For øvrig gateparkering iht. områdets bestemmelser.

Minste leietid:
Leiekontrakten har minste leietid på 3 måned på korttidskontrakt, og 12 måneder på langtidskontrakt. Leietaker kan ikke si opp kontrakten slik at den opphører i desember.

Generell info:

Er du interessert i denne leiligheten, oppfordrer vi deg til å sende oss din e-postadresse samt telefonnummer, slik at vi får fulgt deg opp på en god måte. Bildene kan være tatt på et tidspunkt hvor leiligheten har vært helt eller delvis møblert, og med møbler og utstyr som ikke følger med. Plantegning og bilder kan også være fra en tilsvarende leilighet i samme eiendom. Arealet er beregnet ut fra tegninger, og kan avvike noe fra virkeligheten. Det er derfor viktig at du besiktiger leiligheten.


Om Heimstaden:

Heimstaden er et ledende europeisk boligselskap og investor med rundt 158 000 hjem i ni land. Med verdiene Dare, Care og Share som grunnlag jobber 1 900 medarbeidere for å skape en enklere og bedre hverdag for våre leietakere.
Se gjerne heimstaden.no for flere leiligheter og næringslokaler til leie – og for å lære mer om hvem vi er og hva vi står for.

Bjørnar Røsås

Utleier

Bjørnar Røsås

E-mail: Bjornar.Rosas@heimstaden.no

12 500 kr/mån.

Tilgjengelig: 21 februar, 2026
Antall rom: 2
Størrelse: 29kvm
Etasje: 2
Heis: Nei
Balkong: Nei
Eiendom: Tunvegen 01-16
Leilighetsnummer: Tu08\1201

Planløsning

For å se kartet må du godta informasjonskapsler for Google Maps.
Last inn siden på nytt etter at du har endret innstillingene for informasjonskapsler.

Er du interessert?

    I nærheten

    Viser nå
    Viser nå
    Viser nå