Malmö - Almgården

Agnesfridsvägen 93

Tillbaka till sök

Renoverad och yteffektiv etta med hiss – våning 8 på Almgården, Malmö


Välkommen högt upp i huset till denna stilrena och perfekt planerade etta på våning åtta, totalrenoverad under 2022. Här bor du ljust, modernt och bekvämt med hiss hela vägen upp och en genomtänkt planlösning som maximerar varje kvadratmeter.


Om bostaden
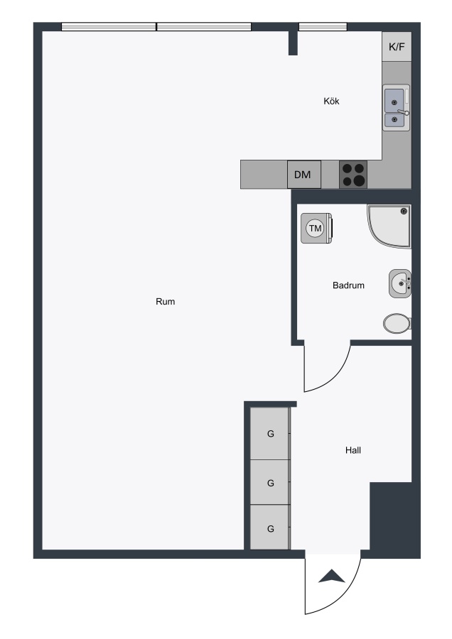
Lägenheten erbjuder en öppen planlösning mellan kök och vardagsrum samt en praktisk sovalkov som skapar en naturlig plats för sängen. Parkettgolv och vita väggar ger ett tidlöst och luftigt intryck. Köket är fullt utrustat med diskmaskin, spishäll, mikro, ugn, fläkt samt kyl/frys, allt i en stilren design med vita luckor. Det helkaklade badrummet kombinerar vita väggar med grå klinker på golvet och är utrustat med dusch, toalett, handfat med kommod  samt egen tvättmaskin. I hallen finns goda förvaringsmöjligheter som gör vardagen smidig.


Läge & omgivning
På Almgården bor du med närhet till trevliga grönområden och utmärkta kommunikationer som tar dig smidigt till centrala Malmö och omkringliggande orter. Ringvägen ligger nära för enkel bilpendling, och Jägersro Center nås snabbt med sitt breda utbud av restauranger, butiker och service. Området passar utmärkt för dig som vill kombinera lugnt boende med god tillgänglighet och ett aktivt stadsliv.


Praktisk information



  • Hyran avser 2025 års hyresnivå

  • Uppvärmning, kall- och varmvatten samt grundutbud av kabel-TV ingår i hyran

  • Elförbrukning, hemförsäkring och valfritt bredband bekostas av hyresgästen

  • Garageplats finns att hyra separat

  • Parkeringsplats utomhus hanteras via Aimo Park

  • Planlösningen kan avvika från verkligheten

  • Vi reserverar oss för eventuella felskrivningar

  • Bostaden hyrs ut i befintligt skick

  • Endast intresseanmälningar via hemsidan, där även uthyrningspolicy finns tillgänglig


Intresseanmälan


Välkommen att anmäla ditt intresse via hemsidan och ta chansen att bo i en modern och trivsam lägenhet på Almgården i Malmö.

Uthyrare

Elisabeth Krook Lindén

E-mail: elisabeth.krooklinden@heimstaden.com

6 969 kr/mån

Tillgänglig: 1 maj, 2026
Antal rum: 1 rum och kök
Storlek: 34m²
Våning: 8
Hiss: Ja
Balkong: Nej
Tvättmaskin: Ja
Diskmaskin: Ja
Förråd: Ja
Fastighet: Almgården 4
Byggnadsår: 1972
Objektsnummer: 6851201-1802

Vill du veta mer om våra riktlinjer? Läs vår uthyrningspolicy.

Faciliteter

  • Hiss i fastigheten
  • Bredband tecknas av dig som kund
  • Hushållsel ingår inte i hyran
  • Tvättstuga finns i angränsande fastighet
  • Tvättmaskin
  • Porttelefon
  • Kombinerad kyl/frys
  • Källarförråd
  • Säkerhetsdörr
  • Duschvägg/ar
  • Diskmaskin finns

Planlösning

För att se kartan måste du acceptera cookies för Google Maps.
Vänligen ladda om sidan efter att du har ändrat dina cookie-inställningar.


I närheten

Visas nu
Visas nu
Visas nu