Luleå - Hertsön

Morkullegränd 12

Tillbaka till sök








Praktisk och trivsam 1 rok på Morkullegränd – perfekt första boende


Välkommen till ett ljust och välplanerat hem om 48 kvm på populära Morkullegränd i Luleå. Här erbjuds ett bekvämt boende som passar perfekt för dig som söker din första egna lägenhet med närhet till både natur och goda kommunikationer.


Om bostaden
Denna hemtrevliga lägenhet har en smart planlösning som skapar en rymlig känsla. Ljusa väggar bidrar till ett luftigt intryck och det generösa badrummet ger extra komfort i vardagen.


Funktioner och bekvämligheter



  • Välplanerade ytor på 47 kvm

  • Ljus och trivsam interiör

  • Rymligt badrum

  • Tillgång till stor innergård med plats för umgänge

  • Tvättstuga i närliggande fastighet


I hyran ingår värme, vatten, TV-bas utbud samt internet (100 Mbit). Hushållsel tillkommer.


Om området – Morkullegränd, Luleå
Här bor du i ett lugnt och naturnära område med närhet till fina grönområden som bjuder in till promenader och friluftsliv. Samtidigt finns goda bussförbindelser som enkelt tar dig till centrala Luleå och andra delar av staden. Området är idealiskt för dig som vill kombinera ett rofyllt boende med närhet till service, studier och arbete.


Välkommen att höra av dig för mer information eller gör en intresseanmälan.








Uthyrare

Marita Vuorela

E-mail: marita.vuorela@heimstaden.com

4 432 kr/mån

Tillgänglig: 1 juli, 2026
Antal rum: 1 rum och kök
Storlek: 48m²
Våning: 3
Hiss: Nej
Balkong: Nej
Tvättmaskin: Nej
Förråd: Ja
Fastighet: Hertsön 11:704
Byggnadsår: 1976
Objektsnummer: 1017270-1201

Vill du veta mer om våra riktlinjer? Läs vår uthyrningspolicy.

Faciliteter

  • Tomtskötsel
  • Hushållsel ingår inte i hyran
  • Förråd i anslutning till lägenheten
  • Samlingslokal i gemensamhetsutrymme

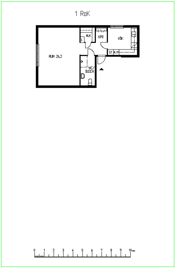
Planlösning

För att se kartan måste du acceptera cookies för Google Maps.
Vänligen ladda om sidan efter att du har ändrat dina cookie-inställningar.


I närheten

Visas nu
Visas nu
Visas nu