Linköping - Ryd

Mårdtorpsgatan 19

Tillbaka till sök
Välkommen till Mårdtorpsgatan 19!

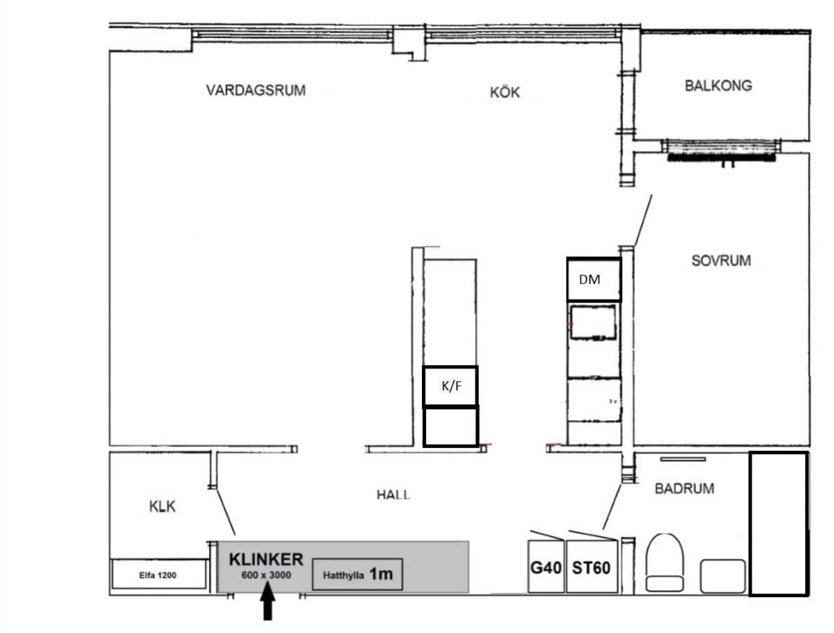
Här erbjuds en härlig tvåa med balkong där kök och vardagsrum totalrenoveras nu och där badrummet renoverades 2013.  



  • Köket får beige och släta köksluckor som är försedda med dörrdämpare. Bänkskivan i laminat är både tålig och vacker. Tillsammans med de matchande stänkskydden ger det ett stilrent uttryck. Köket är utrustat med induktionshäll, inbyggd ugn, mikrovågsugn, kombi kyl/frys och diskmaskin, samtliga i rosfrittstål. 

  • Badrummet är helkaklat och utrustat med badkar, wc, handfat och spegelskåp. 

  • Hallen kommer förses med säkerhetsdörr och på golvet kommer det ligga klinkergolv som övergår till parkett. Här finns flera garderober som ger gott om extraförvaring. 

  • Sovrummet är lättmöblerat och rymligt.

  • Lägenhetens vardagsrum ligger öppet mot köket och ger ett flexibelt rum som enkelt anpassas efter dina behov.


I Ryd bor du en kort promenad från Ryd Centrum, med välsorterad mataffär, apotek och restauranger. Området har utmärkta cykelvägar och bussförbindelser som tar dig snabbt in till stan. Linköpings Universitet nås med en kort cykeltur vilket gör det till en idealisk plats för studenter och Rydskogen erbjuder bland annat fina motionsspår, utegym och frisbeegolf.


Att bo hos Heimstaden innebär en trygg och bekväm vardag. Vår kundservice är tillgänglig dygnet runt för att hjälpa dig med akuta ärenden.
Vi har en dedikerad fastighetsskötare som känner området väl och kan erbjuda bästa möjliga service när du behöver hjälp i din bostad.
Som en extra välkomnande gest bjuder vi på två månaders hemförsäkring som inflyttningspresent. Vi strävar alltid efter att ge dig det lilla extra, med VIP-erbjudanden, rabatter och kundaktiviteter som gör ditt boende ännu mer uppskattat.


Hyresinformation 


  • Hyran avser 2026 års hyresnivå.  

  • De invändiga bilderna är exempelbilder på materialen och vitvarorna som installeras. 

  • Värme, kall-och varmvatten samt Tele 2s Tv-grundutbud ingår.

  • Bostaden hyrs ut i befintligt skick

  • Vi reserverar oss för eventuella felskrivningar.

  • Då lägenheten är under renovering så kommer vi inte kunna erbjuda några visningar, men åk gärna förbi området så ni får en uppfattning om läget. 


- Intresseanmälan -

Observera att intresseanmälan endast tas emot via vår hemsida, där du även hittar information om vår uthyrningspolicy.

Uthyrare

Carl Eklöf

E-mail: carl.eklof@heimstaden.com

8 726 kr/mån

Tillgänglig: 1 mars, 2026
Antal rum: 2 rum och kök
Storlek: 50m²
Våning: 3
Hiss: Nej
Balkong: Ja
Tvättmaskin: Nej
Diskmaskin: Ja
Förråd: Ja
Fastighet: Ostformen 6
Byggnadsår: 1969
Objektsnummer: 1178110-1204

Vill du veta mer om våra riktlinjer? Läs vår uthyrningspolicy.

Faciliteter

  • Tele 2 grundutbud ingår i hyran
  • Badkar
  • Bredband tecknas av dig som kund
  • Hushållsel ingår inte i hyran
  • Kombinerad kyl/frys
  • Balkong
  • Förråd i anslutning till lägenheten
  • Spis med induktionshäll
  • Säkerhetsdörr
  • Diskmaskin finns

Planlösning

För att se kartan måste du acceptera cookies för Google Maps.
Vänligen ladda om sidan efter att du har ändrat dina cookie-inställningar.


I närheten

Visas nu
Visas nu
Visas nu