Helsingborg - Söder

Håkan Lundbergs gata 24

Tillbaka till sök

Ljus och modern hyreslägenhet med balkong i södra Helsingborg – nära centrum


Just nu erbjuder vi en generös hyresrabatt för dig som ny hyresgäst! Den angivna hyran är redan sänkt med 1 332 kr per månad, vilket ger dig en lägre boendekostnad under hela det första året
Observera att hyran som visas redan inkluderar rabatten och att inget ytterligare avdrag görs.

Välkommen till en välplanerad och trivsam lägenhet belägen i södra Helsingborg, med närhet till centrum och det mesta du behöver inom bekvämt promenadavstånd. Här bor du i ett modernt kvarter med genomtänkta lösningar och en hemtrevlig atmosfär.

Lägenheten håller en god standard med stilrena och praktiska materialval som skapar en ljus och inbjudande känsla. Ekparkett och ljusa väggar genomsyrar hela bostaden. Den öppna planlösningen mellan kök och vardagsrum tillsammans med stora fönster ger ett generöst ljusinsläpp och fina sociala ytor.


Köket är modernt utformat med plats för matbord och utrustat med diskmaskin. Från vardagsrummet nås den rymliga balkongen som passar perfekt för avkopplande sommarkvällar. Badrummet är helkaklat och utrustat med dusch, tvättmaskin och torktumlare. Förvaring finns antingen i lägenheten eller i källarförråd, beroende på bostad.


Kvarteret Bryggeriet består av fyra hus, där varje hus har en egen innergård som bjuder in till sociala möten. I tre av husen finns garage under byggnaderna med smidig access via hiss direkt från trapphuset. Cykelrum finns i anslutning till varje hus. Garageplats finns att hyra separat. Kabel-tv och internet levereras via Telia. Värme och vatten ingår i hyran, medan hushållsel tillkommer.

Uthyrare

Layal Sarris

E-mail: layal.sarris@heimstaden.com

7 195 kr/mån

Tillgänglig: 1 maj, 2026
Antal rum: 2 rum och kök
Storlek: 45m²
Våning: 1
Hiss: Ja
Balkong: Ja
Tvättmaskin: Ja
Diskmaskin: Ja
Miljöcertifierad: Ja
Fastighet: Norrland 11
Objektsnummer: 1284100-1108

Vill du veta mer om våra riktlinjer? Läs vår uthyrningspolicy.

Faciliteter

  • Hiss i fastigheten
  • Kabel-TV ingår ej i hyran
  • Hushållsel och kallvatten ingår inte i hyran
  • Tvättmaskin
  • Lägenheten är utrustad med tvättmaskin och torktumlare
  • Porttelefon
  • Miljöbyggnad Silver
  • Balkong
  • Säkerhetsdörr
  • Duschvägg/ar
  • Diskmaskin finns
  • Cykelställ på gården

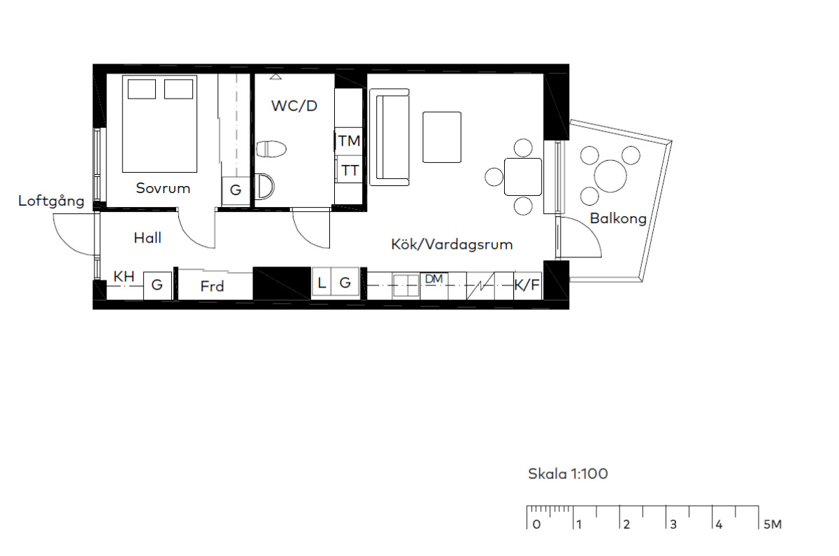
Planlösning

För att se kartan måste du acceptera cookies för Google Maps.
Vänligen ladda om sidan efter att du har ändrat dina cookie-inställningar.


I närheten

Visas nu
Visas nu
Visas nu