Grünerløkka - Sofienberg / OSLO

Waldemar Thranes Gate 73

Tilbake til søk

Alt inkludert! Nyoppført 4-roms med felles takterrasse- Ledig 01.02.26

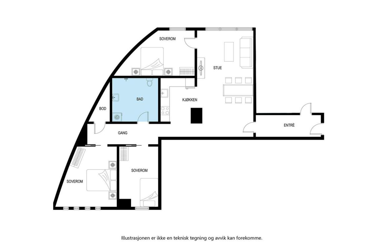
Helt ny 4-roms leilighet med spennende arkitektur, HTH kjøkkeninnredning med Siemens hvitevarer, Duravit baderominnredning, heis, sykkelparkering, felles takterrasse, bod mm. Beliggende attraktivt til på Kiellandsplass med et rikt utvalg av cafeer, butikker, kollektiv transport og rekreasjonsmuligheter. Leiligheten har et areal på 93 m2 BRA med en herlig kombinasjon av moderne byggteknikk og klassisk arkitektur.


Eiendommens rom:
Indre rom:
Entre, stue med åpen kjøkkenløsning, bad og 3 soverom.

Ytre rom:
Sykkelparkering og muligheter for å leie ekstra bodplass.


Standard:
Vinduer: Nye vinduer med god isoleringsevne som sikrer lavt varmetap og med dette lave energikostnader.
Gulvflater: Kombinasjon av laminat og fliser.
Kjøkken: Kjøkkeninnredning med integrerte hvitevarer; platetopp, stekeovn, kjøleskap med fryser, oppvaskmaskin og vifte.
Bad: Fliser på gulv og vegger med dusjdører i glass. Dørene kan slås inn i dusjen for maksimal utnyttelse av gulvareal. Varmekabler og opplegg for vaskemaskin.
Bod: Innvendig bod og mulighet for å leie ekstra bod i fellesområde.


Inventar:
Boligen leies ut umøblert.
Hvitevarer medfølger.


Fasiliteter:
Leiligheten har dørtelefon, opplegg for kabel-TV og fiber bredbånd.

Kostnader ved leie av bolig
Husleien inkluderer fyring/oppvarming, varmt vann og strøm, verdien av dette er anslått til kr 3 000 pr måned.
Leietager må tegne egen innboforsikring.


Følgende fordeler får du ved å leie hos Heimstaden:

  • Bredbåndstilknytning fra 100 Mbps
  • Egen kundeservice for rask behandling av henvendelser
  • Heimservice - 2 timer med hjelp i leiligheten etter at du har flyttet inn
  • Trappevask er inkludert
  • Vaktmestertjeneste utført av egne ansatte er inkludert
  • Egen bemannet vakttelefon som er tilgjengelig ved akutte situasjoner utenom våre åpningstider
  • Mulighet for lån av verktøykasse under hele leieforholdet
  • Vi eier leilighetene selv og er ingen mellommann
  • Profesjonell aktør/eier

Eiendommen:
Salomon Skofabrikk ble drevet i bygningen frem til 1958. Totalt rehabilitert i 2019 med helt nye delikate og lyse leiligheter i varierende størrelser med HTH kjøkken og integrerte hvitevarer fra Siemens, Duravit baderomsmøbler, heis, felles takterrasse, solskjerming, sykkelparkering og boder. Høy takhøyde med en herlig kombinasjon av moderne byggteknikk og klassisk arkitektur. Noen av leilighetene har egne takterrasser.

Beliggenhet:
Attraktiv beliggenhet på Alexander Kiellandsplass sentralt mellom St. Hanshaugen og Grünerløkka.
Umiddelbar nærhet til handle- og servicetilbud, mange hyggelige kafeer og spisesteder, samt park og grøntarealer rett i nærheten.

Kort vei til tur- og rekreasjonsmuligheter langs Akerselva i tillegg til gangavstand til sentrum. Gangavstand til Grünerløkka med spesialforretninger, samt flere kjedebutikker, kaffebarer, kafeer, klesforretninger, gallerier og interiørbutikker. Kort vei til Vulkan med Mathallen og flere servicetilbud. Oslo Met, Høyskolen Christiania, arkitekthøyskolen og Westerdals i relativt kort avstand.

Adkomst
God offentlig kommunikasjon i umiddelbar nærhet. Buss 21, 33, 34 og 54 tar deg direkte til blant annet Oslo S, Aker Brygge, Bislett og Nydalen.

Parkering
Gateparkering ihht. områdets bestemmelser.

Utleiers krav til sikkerhet:

Som sikkerhet i dette leieforholdet kan leietaker velge å innbetale et depositum tilsvarende 3 måneders husleie til Danske Bank, eller kjøpe en leiegaranti tilsvarende 4 måneders husleie fra Keyhole. Leiegaranti fra Keyhole betales med månedsabonnement, f.eks vil et depositum på kr 48 000 koste fra kr 173 per måned. Mer informasjon om produktet og beregnet pris for din leiegaranti ser du på: no.usekeyhole.com/heimstaden


Fordeler med leiegaranti:
  • Du slipper å binde opp penger i et depositum
  • Du betaler i stedet et fast lavt månedsbeløp for mer økonomisk fleksibilitet
  • Det er enkelt å opprette en leiegaranti
  • Tilfredsstiller utleiers krav til sikkerhet
  • Du får raskt svar på om leiegaranti er godkjent som sikkerhet for ditt leieforhold

Ta kontakt med ansvarlig utleier for å finne ut om du tilfredsstiller vilkårene for kjøp av leiegaranti: Du må være privatperson med norsk personnummer eller d-nummer. Videre må du kunne dokumentere din inntekt, og være uten betalingsanmerkninger.


Første måneds husleie innbetales senest 14 dager før overtagelse, sammen med enten depositum eller første månedsbeløp for leiegaranti.


Minste leietid:

Leiekontrakten har minste leietid på 12 måneder. Leietaker kan ikke si opp kontrakten slik at den opphører i desember.


Generell info:

Er du interessert i denne leiligheten, oppfordrer vi deg til å sende oss din e-postadresse samt telefonnummer, slik at vi får fulgt deg opp på en god måte. Bildene kan være tatt på et tidspunkt hvor leiligheten har vært helt eller delvis møblert, og med møbler og utstyr som ikke følger med. Plantegning og bilder kan også være fra en tilsvarende leilighet i samme eiendom. Arealet er beregnet ut fra tegninger, og kan avvike noe fra virkeligheten. Det er derfor viktig at du besiktiger leiligheten.


Heimstaden:

Heimstaden er et av Europas ledende boligeiendomsselskap med rundt 159 000 utleieboliger i ni land. Vi kjøper, utvikler og forvalter boliger med et langsiktig perspektiv. Med bakgrunn i Heimstadens verdier; Care, Dare og Share, skaper våre 1900 kollegaer Friendly Homes – hjem med omtanke, for våre kunder og verdi for våre eiere.

Bjørnar Røsås

Utleier

Bjørnar Røsås

Mobiltelefon: +4748247433 E-mail: Bjornar.Rosas@heimstaden.no

30 900 kr/mån.

Tilgjengelig: 1 mars, 2026
Antall rom: 4
Størrelse: 90kvm
Etasje: 3
Heis: ja
Balkong: Nei
Eiendom: Waldemar Thranes Gate 71-73
Leilighetsnummer: Wt73\304B

3D visning

Fasiliteter

  • Heis

Planløsning

For å se kartet må du godta informasjonskapsler for Google Maps.
Last inn siden på nytt etter at du har endret innstillingene for informasjonskapsler.

Er du interessert?

    I nærheten

    Viser nå
    Viser nå
    Viser nå